The Wellington Neighborhood

Project Details

Project Name
The Wellington Neighborhood
Project Types
Affordable Housing
Project Scope
New Construction
Shared By
mohan reddy
Project Status
Built
Room or Space
Other

Project Description

2003 RADA
Affordable / Merit

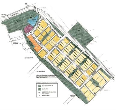
The Wellington Neighborhood stands out not only for its architecture and master plan but also for its reclamation of a truly hardscrabble site. Previously home to a dredge mining operation, the land was severely damaged and pocked by great boulders. “We had to bring in large machines to move that stuff around and level it out and then cap it with crushed rock,” says Tom Lyon.

Phase I of a larger program, the 22-acre project consists of 122 units of single-family homes and duplexes. The Victorian-style structures are organized around “green courts,” clusters of homes fronting small parks and green spaces. “This is a fairly hostile environment in the wintertime, and they do get a lot of snow and wind,” says Lyon. “This design creates a protected spot, which becomes a meeting place and a place for the kids to play.”

The judges lauded the project’s plan as “simple and straightforward.”

Upcoming Events

  • Build-to-Rent Conference

    JW Marriott Phoenix Desert Ridge

    Register Now
  • Reimagining Sense of Place: Materiality, Spatial Form, and Connections to Nature

    Webinar

    Register for Free
  • Homes that Last: How Architects Are Designing a Resilient Future

    Webinar

    Register Now
All Events