The Training Center

Project Details

Project Name
The Training Center
Location
AuroraCO
Project Types
Project Scope
New Construction
Shared By
Ashleigh Popera
Project Status
Built
Year Completed
2016
Size
54,930 ft²

Project Description

FROM THE ARCHITECTS:

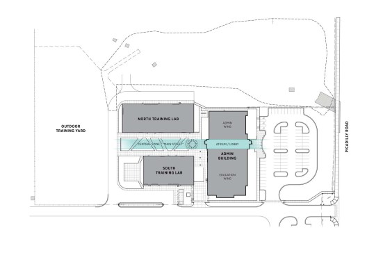
The new center in Aurora, CO was designed and built to provide comprehensive training programs for construction professionals. The Training Center is a state of the art 54,964 s.f. teaching facility sited on 11 acres. The campus features a one-story administration structure with two detached pre-engineered labs.

The administration building sets the first impression for the facility with its exposed steel frame truss elements supporting an angled roof masonry veneer and full height curtain-wall glazing. The reception and central lobby bisect the length of the building and act as the spine, organizing the building to create a clear path of circulation, and feature unique tectonic details to articulate the owner’s industrial roots. The use of exposed acoustical roof decking allows for a seamless transition of the lobby ceiling between interior and exterior and enables the dynamic roofline that defines the entry.

Other administration design elements include a large lobby with exposed beams and colorful seating areas, large hanging pendant light fixtures, polished concrete floors, glass wall tile, metal sheet panel at receptionist desk, exposed acoustical ceiling deck, carpet and acoustical ceiling tile throughout offices and classrooms, colorful industrial, wood/ceiling slatwall design elements, and two garage doors opening to an outdoor patio in cafeteria.

Pre-fabricated metal buildings house the training labs complete the campus with consistent use of exterior paneling on all buildings. Each building is placed to enhance the adjacent buildings and creates protected outdoor areas in an elegantly landscaped campus quadrangle.

The North Laboratory Building was designed for ongoing electrical, structural/ rigging and millwright training. Components include (2) 7.5 ton overhead cranes, multiple grinding stations, turbine/ generator, oversized motorized sectional doors, infrared ceiling heaters with oversized destratification fans throughout.

The South Laboratory Building was designed for ongoing pipefitting and welding training. Components include complete weld ventilation control system, including (18) welding stations, (6) grinding stations, multiple welding hood stations. Building included oversized garage doors, along with multiple pipe threading machines. Generous common areas for interaction and learning outside of the classroom.

Upcoming Events

  • Design Smarter: Leveraging GIS, BIM, and Open Data for Better Site Selection & Collaboration

    Live Webinar

    Register for Free
  • Slate Reimagined: The Surprising Advantages of Slate Rainscreen Cladding

    Webinar

    Register Now
  • The State of Residential Design Today: Innovations and Insights from RADA-Winning Architects

    Webinar

    Register for Free
All Events