The Streeter House

Project Details

Project Name
The Streeter House
Architect
Velux, Cabot
Project Types
Custom
Shared By
babaiah
Project Status
On the Boards/In Progress
Size
2,300 ft²
Room or Space
Other

Project Description

2008 RADA
Custom / 3,500 Square Feet Or Less / Grand

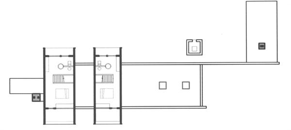
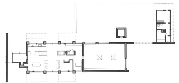
The design of this house nestled between pond and marsh is all about controlling views. The site looks remote, but the hitherto “unbuildable” lot is actually wedged into a cluster of homes ringing a communal pond. A dark plinth, made from custom-fabricated oversized concrete blocks, anchors two ethereal white boxes to the ground. Despite the apparent heft of the structure, says David Salmela, FAIA, what he’s designed is essentially a glass house.

There are windows everywhere, he explains, worked in around the concrete block and glulam columns. And they’re strategic—glazed end pieces use vertical wood slats to subtly obscure views. Where necessary, the view is blocked entirely—Galvalume-clad walls on the building’s long axis provide privacy from a too-close neighbor. Our judges praised this dance of solid and void for its “halting, mysterious quality. It’s not about the tectonics, it’s about the Scandinavian aura of light.” The architecture may be bold, but Salmela wanted the structure to rest humbly on its verdant site. Only one tree was sacrificed, despite a footprint that spans setbacks from edge to edge. Eco-conscious materials—concrete block with flyash, SIPs, reclaimed cypress, and insulated glass—create a simple kit of parts elegantly assembled. Inside, golden-hued wood floors and trim imbue the minimalist space with welcoming warmth.

Salmela credits Minnesota’s Scandinavian roots for the ready acceptance of contemporary designs such as his. “Architecture should have a purity and cleanness to it, but it doesn’t need to be cool,” he says.

Upcoming Events

  • Design Smarter: Leveraging GIS, BIM, and Open Data for Better Site Selection & Collaboration

    Live Webinar

    Register for Free
  • Slate Reimagined: The Surprising Advantages of Slate Rainscreen Cladding

    Webinar

    Register Now
  • The State of Residential Design Today: Innovations and Insights from RADA-Winning Architects

    Webinar

    Register for Free
All Events