The Senate of Canada Building

Project Details

Project Name
The Senate of Canada Building
Location
2 Rideau St.OttawaONCANADAK1A 0A4
Project Types
Government
Project Scope
Adaptive Reuse
Shared By
DiamondSchmittArchitects
Project Status
Built
Year Completed
2019
Size
130,000 ft²
Certifications & Designations
Other
Team
Principal: Don Schmitt
Principal: Martin Davidson
Principal, KWC Architects: Ralph Wiesbrock
Design architect: Corina Ardeleanu
Design architect: Christopher Hughes
Design architect: Dieter Janssen
Design architect KWC Architects: Laszlo Mohacsi
Design architect: Fernanda Rubin
Design architect KWC Architects: Matthew Barker
Design architect: Sydney Browne
Design architect KWC Architects: Tamara Khou
Design architect: Nazia Mulji
Design architect KWC Architects: Sean Siddons
Design architect KWC Architects: Irina Solop
Design architect KWC Architects: Eric Sziraki
Design architect KWC Architects: Alan Tyndall
Design architect: Sharon Birnbaum
Design architect: Catherine Lin
Design architect KWC Architects: Wen-Ting Lu
Design architect: Jessica Martin

Project Description

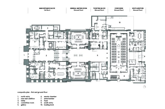
This adaptive re-use project transforms a former train station into a temporary (ten-year) home to the Senate of Canada in Ottawa.

The upper chamber sought interim space while its permanent office and Chamber in the Centre Block on Parliament Hill undergoes a decade-long rejuvenation. The Government Conference Centre, fashioned from the city’s century-old train station, provided the solution; it is across the street from Parliament with a grand Beaux-Arts style befitting the storied legislative role of The Senate.

Diamond Schmitt Architects and KWC Architects in Joint Venture updated the facility, restored architectural features and added a public face to the previously unfinished east elevation. The processional route through the building is re-introduced and major public spaces restored, including the finely detailed General Waiting Room and Concourse. Interior design features of columns, arches, large Diocletian windows and vaulted plaster ceilings are renewed and on view to the public for the first time in 50 years.

Program includes the Senate Chamber, Senate committee rooms and parliamentary offices. The landmark building is now universally accessible and more functional, with new elevator banks and staircases to connect the north and south blocks. Structural, mechanical and electrical systems are now to current codes. State of the art IT, broadcasting and lighting enhancements position the building for many more decades of renewed use.

Upcoming Events

  • Design Smarter: Leveraging GIS, BIM, and Open Data for Better Site Selection & Collaboration

    Live Webinar

    Register for Free
  • Slate Reimagined: The Surprising Advantages of Slate Rainscreen Cladding

    Webinar

    Register Now
  • The State of Residential Design Today: Innovations and Insights from RADA-Winning Architects

    Webinar

    Register for Free
All Events