The School of Architecture and Planning

Project Details

Project Name
The School of Architecture and Planning
Location
The University of New MexicoAlbuquerqueNMUnited States
Project Types
Education
Shared By
Devan
Project Status
Built

Project Description

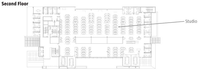
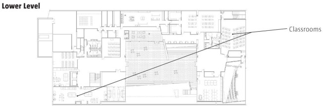
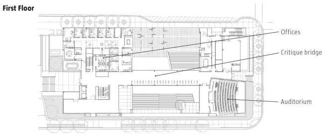
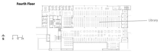
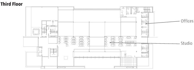
Cruising down old Route 66, motorists glimpse an interesting sight: a two-story movie screen attached to a 108,000-square-foot university building. A throwback to the drive-in and a showcase for student video projects, the screen is a calling card for Antoine Predock Architect’s new School of Architecture & Planning at the University of New Mexico. The building had to accomplish many objectives: it had to provide a new face for the university along Route 66; complement the campus’s ubiquitous Pueblo Revival architecture; and espouse modern design principles. It had to provide instructional space, build community, house a library, and answer the myriad needs of an architecture school.

Predock has crafted an open, unified space, with studios and critique space organized around a three-story well. Balconies, stairs, and a bridge encourage what Predock calls “visual eavesdropping,” fostering social interaction and an environment in which students can learn from instructors and each other.

Read the full article: http://architectmagazine.stg.zonda.onl/educational-projects/old-school-new-school-university-of-new-mexico.aspx

Upcoming Events

  • Design Smarter: Leveraging GIS, BIM, and Open Data for Better Site Selection & Collaboration

    Live Webinar

    Register for Free
  • Slate Reimagined: The Surprising Advantages of Slate Rainscreen Cladding

    Webinar

    Register Now
  • The State of Residential Design Today: Innovations and Insights from RADA-Winning Architects

    Webinar

    Register for Free
All Events