The SCAD Museum of Art

Project Details

Project Name
The SCAD Museum of Art
Architect
Sottile & Sottile
Project Types
Project Scope
Addition/Expansion
Shared By
dmadsen
Project Status
Built
Size
82,118 ft²

Project Description

Savannah, Ga., known as one of America’s oldest and best-designed cities, finds itself straddling technological innovation and old-world elegance with the thoughtful redesign of the Savannah College of Art and Design (SCAD) Museum of Art. The fluid space includes a new 65,000-square-foot expansion off of the original 1856 Greek Revival museum building, and the resulting institution exalts both historicity and new technology.

Christian Sottile, AIA, of local firm Sottile & Sottile, the lead designer of the expanded museum, worked with a core team—including SCAD co-founder and president Paula Wallace—and used charrettes to help guide the early design process. From the outset, the redesign, which won a CNU Charter Award this year, envisioned increasing Savannah’s architectural significance as America’s largest registered urban Historic Landmark District, with a mélange of historical preservation and contemporary innovation. “The site was previously considered a hazard for passersby before the project began,” Wallace says. “As we sifted through piles of 19th-century Savannah Gray Bricks to lay the foundation of our new museum, we unearthed Civil War–era épaulettes and ammunition shells buried there among the rubble.”

The existing museum building once served as the headquarters for the Central of Georgia Railway. The new addition incorporates the remnants of the rail depot next door, which was built circa 1853, and features that building’s original European oak flooring as well as 70,000 repurposed bricks originally handmade by slaves hundreds of years ago. An insulated-concrete-form system was employed where walls were constructed behind the historic masonry; stainless steel helical ties were driven through the Savannah Gray Brick and into the forms; and concrete was poured to secure the ties and support the historic structure. “In terms of construction, the fragile state of the ruins presented a significant challenge: staging a major construction project within the remaining perimeter of historic brick walls that would rely upon the new structure to provide permanent stabilization,” Sottile says. “The result is a continuous oscillation between new construction and historic preservation. Ecologically, the reuse and reinterpretation of the existing historic fabric was our most compelling strategy. We believe it will have global relevance in the decades ahead.”

To further offset history, the lobby boasts a 12-foot-long, virtual orientation-center touchscreen, designed by Pentagram and mounted as a table, that is the largest of its kind. “It reflects the dialogue of the real and the humane with the virtual, to forge a post-digital-era hybrid of craft and technology,” Sottile says.

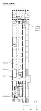
The main entrance, which lies at the intersection of two city streets, bisects the building, creating two wings. The east wing consists of galleries, art studios, and classrooms, as well as the Walter O. Evans Center for African American Studies, designed to house one of the most prominent collections of African-American art in the world. The west wing houses a 250-seat theater used for lectures and cultural programming. The structure is punctuated by a single vertical element marking the main entrance of the museum—a semitransparent channel-glass-encased tower. It is the first time that channel glass has been used this way. “It was … [designed] in horizontal confluences not requiring additional support and is able to withstand the impact of hurricane winds,” Sottile says. It also forms an identifying landmark for the museum, since it is the first addition to a civic landmark on the Savannah skyline in nearly 100 years.

On opening night, the gargantuan touchscreen table doubled as an interactive point of entry and a repository for empty champagne glasses—and reminded onlookers that, while firmly rooted in the dramatic history of its ancestors, the city is also gliding into the contemporary. As the party went into full swing, Paula Wallace announced to the crowd: “Alice Walker once said, … if art doesn’t make us better, then what is it for?” And the cheering drifted gently through the tree-lined streets.

Toolbox: Lobby Touch Table

New York–based design consultancy Pentagram created the world’s largest mobile, freestanding interactive table (left) for the lobby of the newly expanded SCAD Museum of Art. The table’s touchscreen surface serves not just as a conversation starter, but also provides digital orientation to the museum. And because it’s mobile, the table can be relocated elsewhere in the building to make room for events.

Pentagram’s Eddie Opara led a team that took the project from concept to completion in five months. More than 20 people can gather around the multitouch table at one time to view and share digital cards that present information about the museum’s ongoing exhibitions, permanent collections, and educational programs. Visitors can rotate the cards and slide them to other users at the table with the swipe of a fingertip. They also can enlarge the surface of each to present more information and display portfolios and slide shows of related images. Even the background begs for interaction: Users can draw shapes on the surface.

The table—which was fabricated by Brooklyn, N.Y.–based Milgo/Bufkin—is made from a single sheet of folded metal and measures 12 feet long, 5 feet wide, and 34 inches high. The form of the table itself was a collaboration with industrial designer Robert Langhorn, and Opara’s team developed the software for the table’s interface (using C++, Cinder, and Apple’s XCode) in such a way that allows SCAD to develop more programs for the table over time. The surface comprises six 55-inch self-leveling LCD screens, topped by a sheet of glass and surrounded by an infrared bar that activates the surface when touched.

This communal experience fosters collaboration among the SCAD community and museum visitors, and the table’s flexibility allows SCAD to update content within the existing program to showcase temporary exhibitions.

For more information on the 2014 AIA Honor Awards, please visit AIA's website.

Upcoming Events

  • Design Smarter: Leveraging GIS, BIM, and Open Data for Better Site Selection & Collaboration

    Live Webinar

    Register for Free
  • Slate Reimagined: The Surprising Advantages of Slate Rainscreen Cladding

    Webinar

    Register Now
  • The State of Residential Design Today: Innovations and Insights from RADA-Winning Architects

    Webinar

    Register for Free
All Events