The Professor’s House

Project Details

Project Name
The Professor’s House
Location
Chapel HillNC
Project Types
Custom Home
Project Scope
New Construction
Shared By
Kim Weiss
Project Status
Built
Year Completed
2017
Style
Modern
Size
1,600 ft²
Team
Architect: Arielle Condoret Schechter, AIA
Contractor: Ted Sanford, Immaculate Construction
Structural Engineer: Brian Moskow, Red Engineering & Design
Primary Photographer: Keith Isaacs

Project Description

This small, modern house was designed for a retired professor of Native American studies. A widow now, she wanted to downsize from her 3200-square-foot house and live in a new, age-in-place home in a quiet, wooded with her dog, Calamity Jane.

The final design is a little over 1600 heated square feet — about half the size of her previous house and about 1000 square feet less than the average American house (2500 square feet). Yet the fluid, open plan provides all of the Professor’s spatial needs.

With a smaller house, the Professor could also afford such special features as a swimming pool and a Japanese Ofuro soaking tub.  

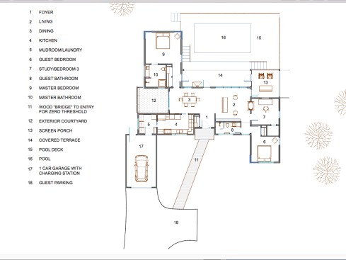
For age-in-place functionality, the house has zero thresholds from entry bridge outside to curb-less showers inside. Leading from the guest parking area to the front door, the bridge avoids steps for her visitors to maneuver. The one-car garage – with a charging station for her electric car — is on grade so she can walk into her kitchen without climbing a single step.

The entry bridge also makes the journey from driveway to front door an event. Projecting pavilions – the garage at one end, the guest bedroom suite at the other—add depth to the façade. And where the terrain dips sharply under the guest bedroom, the recessed foundation makes the house seem to float above the land.

At the rear, a covered terrace with and screen porch overlook nearby Morgan Creek. The master suite opens onto the terrace and the swimming pool. There are no steps down from the house to the terrace, but the swimming pool level is a few steps lower so that it doesn’t dominate the view from the living room, especially in the off-season when it remains covered.

Cascading flat roofs accommodate clerestory windows and expose the plywood roof decking. With the clerestories, large windows and wide glass doors fill the interior with natural light and offer panoramic views of the woods and creek. Deep roof overhangs protect the glazing from summer sun.

Programmatically, the small house includes:
• An open living/dining “great room” with a double-sided fireplace that’s open to both the living room and the Professor’s study behind it.
• A small courtyard off the dining area.
• A master bedroom suite with corner windows, open shower, and Ofuro soaking tub overlooking the courtyard.
• A guest bedroom and bath with corner windows.
• A super-efficient workhorse kitchen connected to a mudroom/laundry room with plenty of storage.
• The one-car garage with charging station.
• Lots of wall space for displaying Native American art and artifacts.

Among the green elements, the house’s roof cavity has R-55 insulation (building code is R-38), a layer of exterior insulation on top of the deck and a layer of continuous insulation on the exterior walls, provided by Huber R-sheathing. The Professor chose a swimming pool over solar panels., yet a small solar array would easily make it net zero in the future.

Primary Construction Materials:
• Southern yellow pine framing
• Hardie Panel siding
• SYP porch and terrace roof
• Windows: Marvin contemporary and Integrity lines
• Flooring: Select Hickory
• Bridge: SYP stained
• Railings: welded and woven wire
• Roof: EPDM white cool roof membrane

Upcoming Events

  • Design Smarter: Leveraging GIS, BIM, and Open Data for Better Site Selection & Collaboration

    Live Webinar

    Register for Free
  • Slate Reimagined: The Surprising Advantages of Slate Rainscreen Cladding

    Webinar

    Register Now
  • The State of Residential Design Today: Innovations and Insights from RADA-Winning Architects

    Webinar

    Register for Free
All Events