The Point House

Project Details

Project Name
The Point House
Project Types
Custom
Project Scope
New Construction
Shared By
Chinnu
Project Status
Built
Size
2,200 ft²
Room or Space
Architectural Detail

Project Description

2004 RADA
Custom / 3,500 Square Feet Or Less

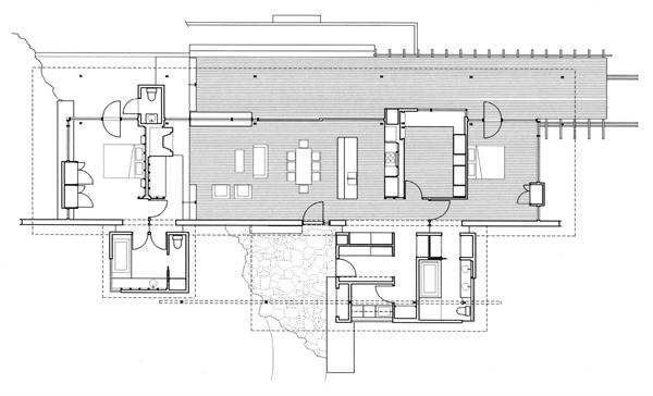
This is a lovely house, set low, and doesn’t make a statement,” a judge said. But it has plenty to say about the landscape. Delicately sited on the rocky spine of a wetland peninsula, its low profile slips into the shorter vegetation at the water’s edge. Rocks outside the windows reach almost to the sills. And a canted roofline lets in views of cedars, pines, and sky.

Bohlin Cywinski Jackson devised a long, linear platform that treads lightly on the land. You enter the building on its north side though a wall of weathering steel. Once inside, the lakefront is revealed through a glass wall with sliding doors and a wood deck running the length of the house. The architects tucked the building behind a thicket for privacy from people on the lake, so the view looks down the water at an angle.

The floor plan places the private rooms on the house’s perimeter: Two cedar boxes attached to the north side define the edges of the covered entryway. They hold bathrooms and utilities, while the bedrooms anchor opposite ends of the house. The judges praised the “meaningful layering of public and private spaces” and the project’s “serene understatement.”

Upcoming Events

  • Design Smarter: Leveraging GIS, BIM, and Open Data for Better Site Selection & Collaboration

    Live Webinar

    Register for Free
  • Slate Reimagined: The Surprising Advantages of Slate Rainscreen Cladding

    Webinar

    Register Now
  • The State of Residential Design Today: Innovations and Insights from RADA-Winning Architects

    Webinar

    Register for Free
All Events