The Patio House

Project Details

Project Name
The Patio House
Location
NingboCHINA
Architect
Atelier Right Hub
Project Types
Multifamily
Shared By
RIGHT HUB
Project Status
Built
Year Completed
2020
Style
Modern
Team
principals in charge: GONG Jian
principals in charge: LIU Meng
architectural designer: ZHANG Jie
interior designer: LING Huihong

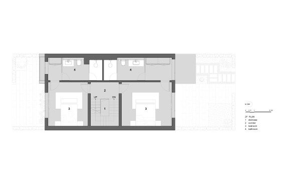
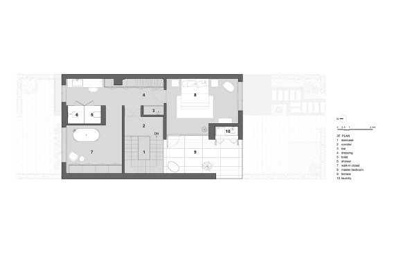
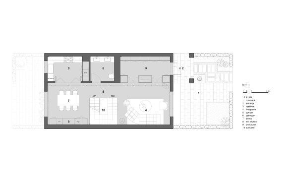
Project Description

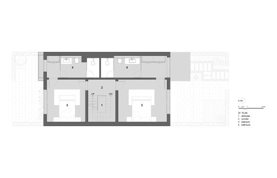
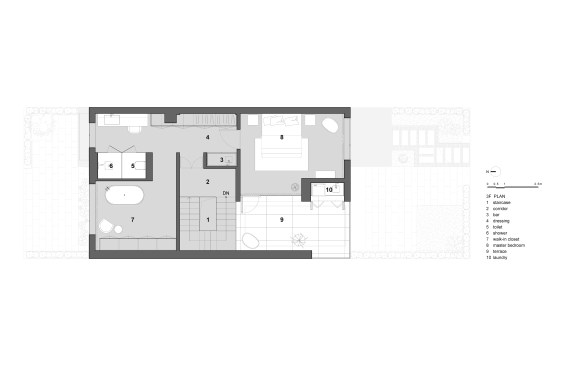
Atelier Right Hub recently completed a 350 square-meter private residence in a high-end villa community in Ningbo. The client’s mandate was simple: “Give me three bedrooms, the remaining space is kept transparent, and this project that will challenge the conventional notion of what a house should be.” Rising up to this challenge, the architects initiated the project by questioning the fundamentals of the “house” typology itself, asking themselves: How can we free up the plan and make it feel light? What is the relationship between the communal and private? When and how should privacy be maintained, if at all? What are the essential and non-essential program components that make a “home”? What is domesticity?

Instead of adding more space, the architects took an opposite approach- cutting a square opening from basement to roof between the main floors in the middle of the west side. The 1:1 aspect ratio reminds one of the typical light shaft in those southern traditional houses. Enclosed with transparent glass, Sunlight shed into the interior space at the center with a gentle touch. With the move of sunlight, the glass box glows from bright to dim; The light shaft formed the inner concentricity of the house.

The height of the shaft vertically synthesizes the four floors, and the depth of it redistributes the forms of space horizontally. By implanting such a light shaft, allows the celebration of air and light and also interweaves the split floors, enriches the spatial experience of domesticity.

The architects employed the material in the interior with restraint. The use of black wooden plank as the “wall” split the first floor into two compartments on the axis from north to south. The black wooden planks were transfigured into cabinets and doors, and the lead spread on the first floor vestibule. By opening invisible doors along the black wooden plank wall, the different functional rooms were presented. The palette of black and white gives the home a tranquil tone.

Upcoming Events

  • Design Smarter: Leveraging GIS, BIM, and Open Data for Better Site Selection & Collaboration

    Live Webinar

    Register for Free
  • Slate Reimagined: The Surprising Advantages of Slate Rainscreen Cladding

    Webinar

    Register Now
  • The State of Residential Design Today: Innovations and Insights from RADA-Winning Architects

    Webinar

    Register for Free
All Events