The Overhang ADU

Project Details

Project Name
The Overhang ADU
Location
PORTLANDOR97211
Architect
Modern ADU Plans
Project Types
Single Family
Project Scope
New Construction
Shared By
Lucas Gray
Project Status
Built
Year Completed
2019
Style
Size
1,300 ft²
Team
Designer: Lucas Gray

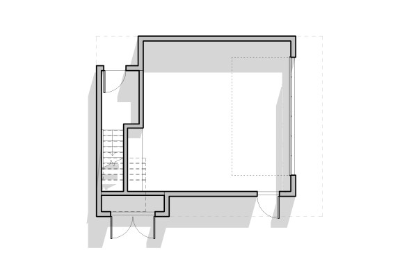
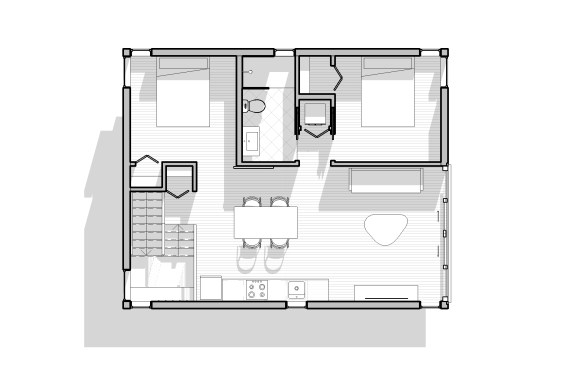
Project Description

This 2-bedroom ADU overhangs a garage and workshop below. Vaulted ceilings and corner windows create a bright open feel in the ADU. The 4-panel sliding glass door becomes a “Juliet balcony” with expansive views over the street and neighborhood, connecting the interior to the surroundings. Cedar siding accents on the exterior provide warmth that is complemented by the dark bluish siding.

Upcoming Events

  • Design Smarter: Leveraging GIS, BIM, and Open Data for Better Site Selection & Collaboration

    Live Webinar

    Register for Free
  • Slate Reimagined: The Surprising Advantages of Slate Rainscreen Cladding

    Webinar

    Register Now
  • The State of Residential Design Today: Innovations and Insights from RADA-Winning Architects

    Webinar

    Register for Free
All Events