The Oak Hill Avenue Houses

Project Details

Project Name
The Oak Hill Avenue Houses
Location
LawrenceKansas
Architect
Studio 804
Project Types
Affordable Housing
Project Scope
New Construction
Shared By
Madeleine D’Angelo
Project Status
Built
Size
1,000 ft²

Project Description

This project was selected as a winner in the 2019 Residential Architect Design Awards
Affordable Housing, Honorable Mention

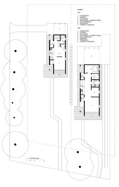
Dan Rockhill’s University of Kansas–based Studio 804 created these two small houses on a quiet residential street in Lawrence, Kan., in response to the area’s changing demographics, which suggest a growing need for more small and affordable homes. The Two Houses on Oak Hill Avenue subdivide a corner lot once occupied by a large 1920s single-family residence that had been demolished prior to Studio 804’s acquisition of the site.

Both homes are organized on a north–south axis and utilize a similarly extruded 12:12 gable form. A narrow shed-roofed extension along the west flank of both houses contains front and rear entries and a galley-style kitchen. The houses are offset from each other on the lot to maximize yard space on the side and to provide privacy. Standing-seam Galvalume siding and roofing define the main body of each house, with floor-to-ceiling glazing at the south end, facing the front yard and street. Horizontal wood siding differentiates the western extensions, and exterior decking on three sides promotes outdoor living. Modest covered parking is attached to the rear of each house.

The 650-square-foot studio house features an open plan, while the 1,000-square-foot house has a single enclosed bedroom with a semi-private area that can be used as an office or second bedroom. The interiors are marked by high ceilings punctuated by exposed wood cross ties, white painted gypsum board walls, and red oak flooring. Both homes achieved LEED Platinum, will be deeded independently, and will provide relatively low-priced options for buyers.

The gabled forms fit easily within the East Lawrence neighborhood, honoring the more modest bones of its older neighbors, while expressing its modernity through a minimalist approach to materials and detailing.

Project Credits
Location: Lawrence, Kan.
Client: Studio 804
Designer: Studio 804, University of Kansas, Lawrence, Kan. . Dan Rockhill (distinguished professor); Christina Base, Sam Bradley, Gen Daley, Alex Delekta, Blake Firkins, Jacob Hansen, Jared Heinzerling, Grace Kennedy, Joe Libeer, TJ Niemann, Alan Palerma, Emilie Printemps, Daniel Ritchie, Dana Ritter, Bianca Webb (students)
Structural Engineer: Norton & Schmidt Consulting Engineers
General Contractor: Studio 804
Size: 650 square feet (house 1); 1,000 square feet (house 2)
Cost: $169,000 (house 1, sale price); $229,000 (house 2, sale price)

Materials and Sources
Adhesives/Coatings/Sealants: Prosoco
Appliances: Blomberg
Bathroom Fixtures: Duravit; Kohler
Cabinets: IKEA
Concrete: MCM
Countertops: Richlite
Exterior Wall Systems: Bridger Steel
Flooring: Master Craft
Furniture: Troscan Design
Glass: Tubelite
Gypsum: USG
HVAC: Samsung
Insulation: Hunter Panel
Kitchen Fixtures: Elkay
Lighting Control Systems/Lighting: Contech Engineered Solutions
Masonry/Stone: Daltile
Metal: Exltube
Paints/Finishes: Steel It; Benjamin Moore; Schluter
Plumbing/Water System: Kohler; Bradford White
Roofing: WR Grace, Bridger Steel
Site/Landscape: Robi Decking
Structural System: Stego Industries
Wallcoverings: Vaproshield; Richelieu; Lynden
Walls: 475 High Performance Building Supply; Spore
Windows/Doors: Pella; Tubelite; Viracon; SureSill

FROM THE ARCHITECTS:

The Oak Hill Avenue houses align with the long-term mission of the city of Lawrence, KS for creating a sustainable future. Part of this future can be achieved by analyzing and planning for local economic and demographic trends. In recent years, the city planners have recognized an escalating trend in the housing market; the entire city/county’s population is growing at a high rate, while the average household size is dwindling considerably. We have seen medium to high population growth rates over the last two decades, and if this trend continues, we will need housing to accommodate a projected 30 to 60 thousand additional residents by the year 2040. These large population increases become even more significant when you factor in the average household size of 2.2 persons. Locally the nonprofit Community Housing Trust has put forward creative solutions by suggesting “affordable housing can be promoted by dividing lots in existing neighborhoods to accommodate two smaller homes.” Increasing urban density in established neighborhoods provides a sustainable way to accommodate a growing population by utilizing existing resources and infrastructure. The Houses on Oak Hill Avenue reflect an effort on our part to recognize the potential of this concept. We created these two houses on a corner lot that previously had a single house. The large lot size of roughly 100 x 160 lent itself to creating a subdivision of two houses. The original 1920’s house was demolished by the previous owners after determining it was well beyond repair. We purchased the vacant lot. Our solution includes two houses; a small 650 sf studio home (1501 Oak Hill Ave) and a larger 1,000 sf two-bedroom home (1503 Oak Hill Ave). The houses are moderately priced at 189 K and 229 K. Both houses create a strikingly modern aesthetic that works well in the 1950’s neighborhood. Their simple forms combine a maintenance free exterior of galvalume roofing/siding and the wood pop outs that work well in the area. In addition, both houses are USGBC LEED Platinum certified.

Project Credits:
Project: Two Houses on Oak Hill Avenue
Designer: Studio 804, University of Kansas, Lawrence, Kan. . Dan Rockhill (distinguished professor); Christina Base, Sam Bradley, Gen Daley, Alex Delekta, Blake Firkins, Jacob Hansen, Jared Heinzerling, Grace Kennedy, Joe Libeer, TJ Niemann, Alan Palerma, Emilie Printemps, Daniel Ritchie, Dana Ritter, Bianca Webb (students)
Structural Engineer: Norton & Schmidt Consulting Engineers
General Contractor: Studio 804

Upcoming Events

  • Design Smarter: Leveraging GIS, BIM, and Open Data for Better Site Selection & Collaboration

    Live Webinar

    Register for Free
  • Slate Reimagined: The Surprising Advantages of Slate Rainscreen Cladding

    Webinar

    Register Now
  • The State of Residential Design Today: Innovations and Insights from RADA-Winning Architects

    Webinar

    Register for Free
All Events