The New American Home 2013

Project Details

Project Name
The New American Home 2013
Location
HendersonNV
Project Types
Outbuilding
Shared By
dmadsen
Project Status
Built
Size
6,721 ft²
Room or Space
Outdoor

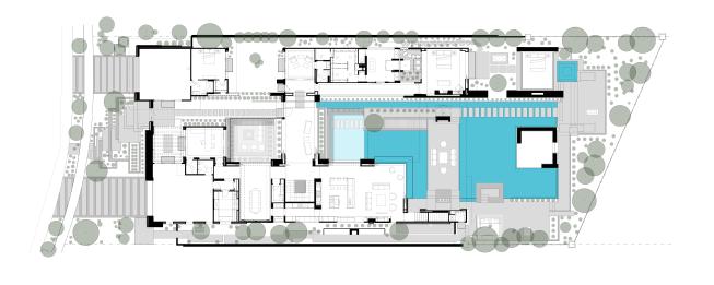
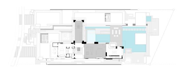
Project Description

This project demonstrates the realm of a cutting edge residence to energy efficiency and high-tech gadgets, a truly unique approach to living in Las Vegas. The floor plan focuses on seamless indoor/outdoor transitions, and a series of vignettes from almost any point of view that keeps one engaged. A canal runs along a walkway from the front door, and a sunken living room is between two large pools that flow into a trough. The sunken living room became the most dramatic covered area of the whole house. The classical elements of water, fire, and air reflect the simplest essential parts and principles of human life. Flexibility became a huge part of how the spaces came to look. We set common gathering areas amongst private living areas, to blend the connection within. Energy efficiency was factored into every aspect of the design. From solar energy, to energy star appliances, formaldehyde-free wood, the residence exemplifies its surrounding environment. A coming together of raw desert beauty matched by the essence of strength yet tranquility.

Upcoming Events

  • Design Smarter: Leveraging GIS, BIM, and Open Data for Better Site Selection & Collaboration

    Live Webinar

    Register for Free
  • Slate Reimagined: The Surprising Advantages of Slate Rainscreen Cladding

    Webinar

    Register Now
  • The State of Residential Design Today: Innovations and Insights from RADA-Winning Architects

    Webinar

    Register for Free
All Events