The Marine Education Center at the Gulf Coast Research Laboratory

Project Details

Project Name
The Marine Education Center at the Gulf Coast Research Laboratory
Location
Ocean SpringsMS
Project Types
Project Scope
New Construction
Shared By
katie_gerfen
Project Status
Built
Year Completed
2018
Size
29,700 ft²
Team
Principal: Bob Harris
Project Manager: Matt Wallace
Project Director: Grace Boudewyns
Designer: Phil Zimmerman
Associate Architect: John Anderson (unabridged Architecture)
Associate Architect: Allison Anderson (unabridged Architecture)

Project Description

Expanded Coverage of the 2020 COTE Top 10 Awards appeared in the October 2020 issue of ARCHITECT.

After an existing structure was destroyed by Hurricane Katrina, the design team crafted a resilient campus that merges learning and nature while stepping as lightly as possible on the landscape.

What were the design goals of this project?
Bob Harris, FAIA, partner: This project came out of the catastrophe of Katrina. There were still a lot of questions about how or whether one should build or what we would do in order to create a more resilient solution. The primary design directive was to make sure that we fit into a natural environment and create a resilient attitude toward leveraging the site’s attributes and crafting an appropriate presence and lasting investment in the educational opportunities of that site. The building needed to frame all that.

What is the most innovative strategy you used?
Heather Holdridge, Assoc. AIA, director of design performance: Maintaining the site and the landscape as our first line of resilient defense [against future hurricanes] instead of the structures itself, along with the integration of our team. Bringing in biologists and coastal ecologists, along with the design team, contractor, owner, and users so that everyone could really understand that strategy—and make sure that it worked with the way that the building was operating—felt like a novel approach.

How did you balance ecology and construction?
Grace Boudewyns, AIA, project director: There was a strong priority to keep the construction limits tight to the buildings—5 feet past every footprint was our construction limit. One of the successes on opening day is that it looked like these buildings just popped up out of nowhere because the natural landscape was preserved.

How did concerns about contamination of or by materials after a storm affect the palette?
Boudewyns: We used locally sourced materials as much as possible. Chris Snyder, the center’s then-director, said, “All buildings eventually end up in the ocean.” We adopted that mantra, avoiding any material that would leach into marine life, and using lumber that is readily available for repairs.

How did you apply lessons from previous hurricanes in your resilient strategies?
Holdridge: We chose the least sensitive ecological zone to build on. And higher is better for dealing with storm surge. The buildings are sited 3 feet above the 500-year flood plain—we went above even FEMA recommendations because we recognized, as we’re experiencing now, that these natural disasters are becoming far more frequent and more intense. We needed to plan accordingly.

Metrics Snapshot:

WATER

Mandatory Metrics
Was potable water consumption measured after occupancy? Yes

Is rainwater captured for use by the project? Yes

Were strategies employed to manage stormwater on site? Yes

Percentage of rainwater managed: 100

For a full list of metrics, visit aia.org.

PROJECT CREDITS
Project: University of Southern Mississippi Marine Education Center at the Gulf Coast Research Laboratory
Location: Ocean Springs, Mississippi
Client/Owner: University of Southern Mississippi
Architect: Lake|Flato Architects, San Antonio, Texas. Bob Harris, Matt Wallace, AIA, Grace Boudewyns, AIA, Phil Zimmerman
Associate Architect: Unabridged Architecture, St. Louis, Miss. John Anderson, AIA, Allison Anderson, FAIA
Structural Engineer: Datum Engineers
M/E/P Engineer: TLC Engineering Solutions
Civil Engineer: Brown, Mitchell & Alexander
General Contractor: Starks Contracting Co.
Landscape Architect: Studio Outside
Lighting Designer: David Nelson & Associates
Environmental Consultants: BMI Environmental Services
Bridge Consultants: Seattle Bridge and HDR
Wayfinding Consultants: Fd2s
Code Consultant: Garabedian Associates
General Contractor: Starks Contracting Co.
Owner’s Representative: M A Howard Consulting
Size in Square Feet: 29,700 SF
Cost: $11.1M

Materials and Sources
Exterior Wall Systems: Plycem by Allura
Flooring: Moisture Shield Vantage (Exterior Decking)
Windows/Curtainwalls/Doors: YKK

This project is a winner of a 2020 AIA COTE Top Ten Award.

From the AIA:

“All buildings eventually end up in the ocean.”—Chris Snyder, Marine Education Center Director

Heeding this advice, the team began to conceptualize the design for the Marine Education Center (MEC) in Ocean Springs, Mississippi. The MEC is the education and outreach arm of The University of Southern Mississippi’s Gulf Coast Research Laboratory. In 2005, the previous center was destroyed by Hurricane Katrina. A second storm impacted the site during schematic design, and a third, Hurricane Nate, hit during construction. It was clear—the new facility would need to be resilient, sustainable, and durable.

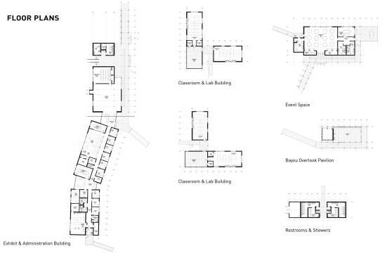
The center exemplifies sustainable coastal building techniques in harmony with the marine environment. The education facility includes outdoor classrooms, laboratories, administration offices, assembly spaces, exhibition areas, and a pedestrian suspension bridge where researchers have an unparalleled opportunity to learn about the ecologically critical bayou and tidal wetlands of Mississippi.

The team consulted with biologists and coastal ecologists to assess flora and fauna in three pre-determined zones, ultimately choosing the building zone with the least sensitive ecosystem, access to open water, and suitable building elevation to protect the buildings in the event of a natural disaster. The buildings were sited within the existing tree canopy, allowing the trees to serve as a natural wind buffer. Considering natural disasters and durability, the design focused on using and maintaining the land to serve as the first line of defense.

The team worked with the Resilient Design Institute to select low-impact materials for the health of occupants and to avoid ocean contamination in the event of a natural disaster. White oak was used primarily on the interiors for millwork and accent paneling, and southern yellow pine was chosen for primary structures. Given the center’s prevalence as a local Mississippi commodity, any future repairs can be quickly and easily accommodated.

From the Architects:

“Eventually, all buildings end up in the ocean.” -Chris Snyder, Director of the Marine Education Center. Heeding this advice, design for the Marine Education Center at the Gulf Coast Research Laboratory focused on sustainability and resiliency after their original Center was destroyed by Hurricane Katrina. Designed to be naturally resilient, the team sited buildings within the existing tree canopy, allowing it to serve as a natural wind buffer. Considering natural disasters and durability, the design focused on using and maintaining the land to serve as the first line of defense. Low-impact materials were selected for the health of the building’s occupants and to avoid ocean contamination in the event of a natural disaster. The Center is an education facility where researchers have an unparalleled opportunity to learn about the ecologically critical bayou and marsh wetlands of Mississippi. The facility includes outdoor classrooms, laboratories, administration offices, assembly spaces, exhibition areas and a pedestrian suspension bridge.

Upcoming Events

  • Design Smarter: Leveraging GIS, BIM, and Open Data for Better Site Selection & Collaboration

    Live Webinar

    Register for Free
  • Slate Reimagined: The Surprising Advantages of Slate Rainscreen Cladding

    Webinar

    Register Now
  • The State of Residential Design Today: Innovations and Insights from RADA-Winning Architects

    Webinar

    Register for Free
All Events