The Lanterman Residence

Project Details

Project Name
The Lanterman Residence
Location
La CañadaCA
Project Types
Single Family
Project Status
Built
Year Completed
2015
Size
2,290 ft²

Project Description

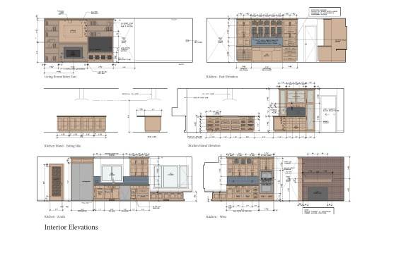
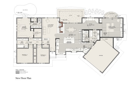
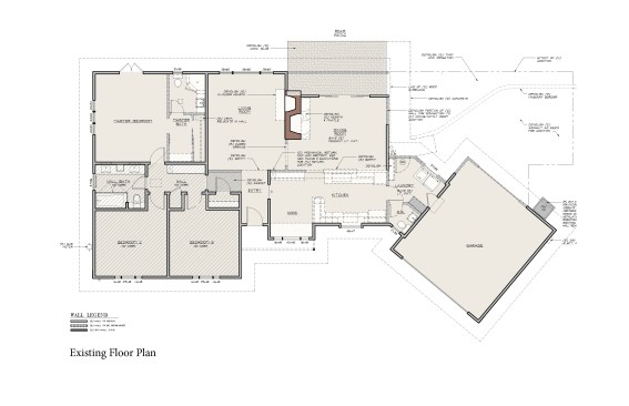
The kitchen was what started it all. As with many homes today, the kitchen plays a central role in how one lives and as one can imagine a major change to the heart of the home has a ripple effect. In this case the kitchen renovation soon gave way to a larger more comprehensive redesign of the entire home. This included a redesign of the bathrooms, laundry area, living and dining areas as well as a 599 sq ft addition which included a new guest bathroom, laundry room. new office space, new family room with a Murphy Bed to serve as an overflow guest bedroom when needed. The original, tightly compartmentalized floor plan gave our clients virtually no storage. By opening the kitchen into the adjacent rooms and adding plenty of custom cabinetry in each living area they now enjoy much needed storage throughout the home, allowing our clients to reclaim space that had previously been unused.

Upcoming Events

  • Build-to-Rent Conference

    JW Marriott Phoenix Desert Ridge

    Register Now
  • Reimagining Sense of Place: Materiality, Spatial Form, and Connections to Nature

    Webinar

    Register for Free
  • Homes that Last: How Architects Are Designing a Resilient Future

    Webinar

    Register Now
All Events