The Houseboat

Project Details

Project Name
The Houseboat
Location
77 Lake DrivePooleDorsetUnited Kingdom
Architect
Mole Architects
Project Types
Single Family
Shared By
Sara Johnson
Project Status
Built
Year Completed
2016
Size
2,379 ft²

Project Description

FROM MEREDITH BOWLES OF MOLE ARCHITECTS:

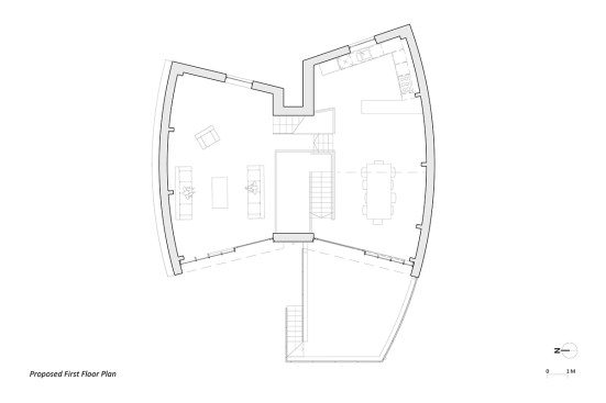
The Houseboat is upside down, its main room raised up to the view. It’s also curved in plan, and split in two, one side raised above the other. It’s an odd fish of a house.

To understand the design, it’s necessary to know something of the main house. The site sits in the garden of the Boat House, an intriguing insertion of the second-class lounge salvaged from the SS Mauritania into a purpose-built modernist house built in 1936 by a Mr Cullen, a businessman and keen sailor.

On my first visit to the Boat House, I loved the way the house offered multiple surprises and the way it connected to the sea. Ensconced within magnificent, tall ponderosa pines, it occupies a headland that drops down to Poole harbour. The whitewashed 1930s cube is perched on the edge of the hill, with railings and porthole windows; a bridge to the boat below. Entering at first floor – a glimpse of the sea – one looks from a circular gallery to the timber-panelled room below. There’s an array of bunk rooms off the balcony, each with a porthole window to the sea beyond. Descending into the ‘second class lounge’, the miniature ballroom gives onto mirrored niches, a galley kitchen, and then out onto the dining room and outdoor terrace. From here the house opens fully to the view across the bay.

It’s a wonderful series of spaces. A sea view always draws the eye, but the drama of the central space counters it wonderfully, and the interior of the house has a presence equally compelling. I felt that a new building on the same site had to be a companion, and should converse with the first house.

The site for The Houseboat has the same opportunity, but in reverse: if one gets up to the first floor, there are wonderful views over the heathland and to the bay beyond. Nestled within the pines, and with a long narrow approach, the site suggests a verticality, a reaching upwards. The house is designed as two hulls, upturned for shelter and sat upon a solid base. One side sits up higher, following the staggered section, but also negotiating the change of scale from the residential street to the high pine trees to the south. The form of the house, with its double-curve on plan, is designed to allow the volume within this context, and to shy away from the established street pattern and recede into the arc of the trees. It sits at the end of the suburban road, but connects strongly to wild heathland beyond.

The Houseboat is tar-black, sitting on a weathered sea wall. The solid base is made from roughcast concrete, and contains the bedrooms, tightly packed as in the hold of a ship. The master bedroom sits on the entrance level, with further rooms a half-level down. The hallway looks up to the light, and to the three-storey arch of concrete that holds up the house. Ascending from below the Plimsoll line, the living and dining areas are lofty and open, with a feeling of being ‘on deck’. Portal frames in Douglas fir support curved walls, so that the rooms widen as they rise up, and then narrow in to the western view. Inside it’s all taut curves and timber joinery, a mixture of rawness and finish. The truncated ends form tall elevations, closed at the front and open in a dramatic screen to the rear, with the weather for the fourth wall.

The house is an upturned boat, or the belly of a whale.

Upcoming Events

  • Design Smarter: Leveraging GIS, BIM, and Open Data for Better Site Selection & Collaboration

    Live Webinar

    Register for Free
  • Slate Reimagined: The Surprising Advantages of Slate Rainscreen Cladding

    Webinar

    Register Now
  • The State of Residential Design Today: Innovations and Insights from RADA-Winning Architects

    Webinar

    Register for Free
All Events