The Grocery

Project Details

Project Name
The Grocery
Location
RushvilleNE
Project Types
Shared By
katie_gerfen
Project Status
On the Boards/In Progress
Size
4,900 ft²

Project Description

This project won a citation in the 2019 Progressive Architecture Awards

“This project’s drawings are simple and clean, like the building itself. The use of plain forms and materials gives it a rough, minimalist feel.” —Paul Andersen, AIA

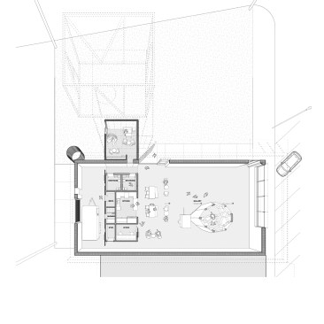
Art and agriculture may seem like strange bedfellows, but in the ranching community of Rushville, Neb.—population 873—the nonprofit Sandhills Institute believes that forging connections between the two can help to preserve the area’s cultural fabric. Its new hub will be the Grocery, a hybrid arts and community center that will host everything from exhibitions to community meetings, and house artists in residence.

The new center comes by its name honestly: Omaha, Neb.–based Actual Architecture’s design brings new life to a defunct midcentury grocery store, stripping back the structure to its essentials to make way for gallery, gathering, and workshop spaces, plus an office and a café. A collaboration with FACT—the University of Nebraska–Lincoln College of Architecture design lab led by Actual principal Jeffrey Day, AIA—the scheme draws inspiration from the precisionist photos and paintings by artists such as Charles Sheeler. Existing brick, tile ceilings, and ground concrete floors will be restored and supplemented with new interior finishes like drywall over plywood backing, and exterior finishes like aluminum panels and galvanized steel siding. A new wood-and-steel tower at the building’s north end will serve as both a minimalist billboard and as the location for apartments to house two to three artists in residence. Outside, local agriculture students are collaborating with Actual on a community garden.

Following in the tradition of Nebraska cultural institutions such as the Bemis Center for Contemporary Arts and Kaneko in Omaha, the Sandhills Institute hopes that by bringing artists to Rushville, it can facilitate programs that combine community-based research and artistic expression—its specific end goal is to explore how to sustain America’s rural farming communities. No outsider, the Grocery will engage the citizens of Rushville in every way possible, even during the construction process, which prioritizes using local crafts and tradespeople.

Project Credits
Project: The Grocery (Rushville Arts and Cultural Center), Rushville, Neb.
Client: The Sandhills Institute . Mel Ziegler
Architect: Actual Architecture, Omaha and FACT, Omaha . Jeffrey L. Day, AIA (Actual Architecture principal and FACT director); Dennis Krymuza, Andrew Goldsmith, Brett Lehr (Actual Architecture project team); Magdalena Vazquez, Joseph Croghan, Scott Kenny, Megan Michalski, Brooke Sayler, Hasan Shurrab, Assoc. AIA (FACT project team, University of Nebraska–Lincoln College of Architecture students)
Interior/Lighting Designer: Actual Architecture + FACT
Structural Engineer (Conceptual Design Phase): Thompson, Dreessen & Dorner
Landscape Designer: Kayla Meyer
Size: 4,900 square feet
Cost: Withheld

Upcoming Events

  • Design Smarter: Leveraging GIS, BIM, and Open Data for Better Site Selection & Collaboration

    Live Webinar

    Register for Free
  • Slate Reimagined: The Surprising Advantages of Slate Rainscreen Cladding

    Webinar

    Register Now
  • The State of Residential Design Today: Innovations and Insights from RADA-Winning Architects

    Webinar

    Register for Free
All Events