The George

Project Details

Project Name
The George
Location
PhoenixAZ85014
Architect
Studio Ma
Project Types
Multifamily
Project Scope
New Construction
Shared By
UGC User
Project Status
Built
Year Completed
2008
Size
19,200 ft²
Certifications & Designations
LEED Silver

Project Description

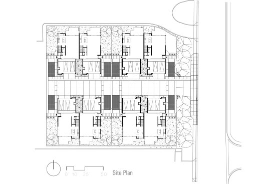
Named after George Christianson, the architect whose house once occupied the site, the George consists of eight single family attached units arranged in four groups of two units each. The project provides family-oriented amenities typical of Central Phoenix area including 2,200 square feet of living area, three bedrooms, two and a half baths, a family room, a ground floor living / dining area and a two car garage. Outdoor amenities include visitor parking adjacent to the main entrances with shaded entry porticoes. Second floor decks further enhance the indoor / outdoor quality of the design while providing visual and programmatic interest in the outdoor public spaces. A dynamic composition of weathered and bright metal skins pick up on the coloration and textures of the neighborhood’s pecan-lined streets and the dark rust color of the Arizona mesquite, adding scale and differentiation to the individual units.

Upcoming Events

  • Slate Reimagined: The Surprising Advantages of Slate Rainscreen Cladding

    Webinar

    Register Now
  • The State of Residential Design Today: Innovations and Insights from RADA-Winning Architects

    Webinar

    Register for Free
  • Specifying Smarter with Copper-Clad Aluminum (CCA) Metal-Clad Cable

    Webinar

    Register for Free
All Events