The Flats

Project Details

Project Name
The Flats
Location
MemphisTN
Architect
Looney Ricks Kiss
Project Types
Custom
Project Scope
Adaptive Reuse
Shared By
dmadsen
Project Status
Built
Size
1,468 ft²

Project Description

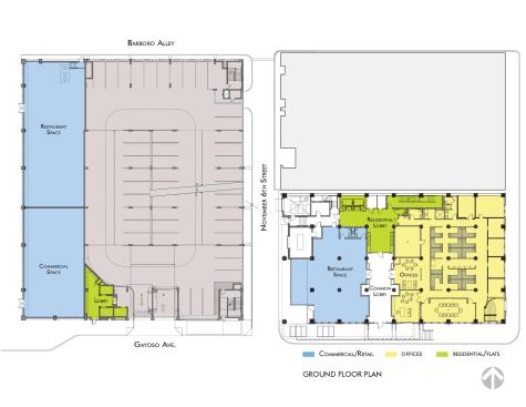
This downtown project includes a mixed-use infill building and parking garage designed in concert with the rehabilitation and adaptive re-use of an adjacent historic building. For years, the site where the infill building is now located lay vacant, stifling the rejuvenation of the Main Street Mall and hindering the mending of downtown’s built environment. The architect was asked to design a mixed-use building to anchor the prominent street corner and the project team worked closely with the client to develop the plans which also included a publicly-funded 209-car parking garage. The architect was also instrumental in demonstrating to the client the value of rehabilitating an adjacent historic building (c. 1917) in connection with the new construction.

The five-story infill building contains 7,000 square feet of ground floor retail and 92 apartments on upper floors. The seven-story historic building features 17,098 square feet of ground-floor retail and office, including the renovated corporate headquarters of a local company, and 60 loft-style apartments above. Today the two buildings are connected by an elevated courtyard and residents of both communities share access to a fitness facility, the parking garage, and the two buildings’ retail offerings. The industrial-sized windows and meticulously preserved façade of the historic building accentuate its prominent street corner position and inside, high ceilings, original warehouse concrete columns and concrete floors all tie together to keep its past intact. Indoor/outdoor relationships are maximized in the infill building with upper floor residential units overlooking the private courtyard or engaging the urban street with balconies and large operable windows. Historic and contemporary combine in a harmonious design.

Upcoming Events

  • Design Smarter: Leveraging GIS, BIM, and Open Data for Better Site Selection & Collaboration

    Live Webinar

    Register for Free
  • Slate Reimagined: The Surprising Advantages of Slate Rainscreen Cladding

    Webinar

    Register Now
  • The State of Residential Design Today: Innovations and Insights from RADA-Winning Architects

    Webinar

    Register for Free
All Events