The Ecology School

Project Details

Project Name
The Ecology School
Location
SacoMaine
Project Types
Education
Shared By
Madeleine D’Angelo
Project Status
Built
Year Completed
2021
Size
15,300 ft²

Project Description

The Ecology School at River Bend Farm in Saco, Maine, represents what you might call anti-architecture. Comprising nearly 15,300 square feet of living, eating, and educational-support spaces, the project is, from an energy standpoint, virtually invisible—its embodied and operational carbon are offset by the energy it creates.

The new Ecology School works the way it does for a reason: the shared notion between client and designers that the architecture should be in service to the school’s larger goal of teaching ecological stewardship. That, at least, was the design brief issued by the facility’s CEO and president, Drew Dumsch, who has overseen the nonprofit since its founding in 1998. Over time, the program has grown from operating seasonally out of a rented summer camp to running year-round on a 105-acre tract of pristine land about 7 miles northwest of downtown.

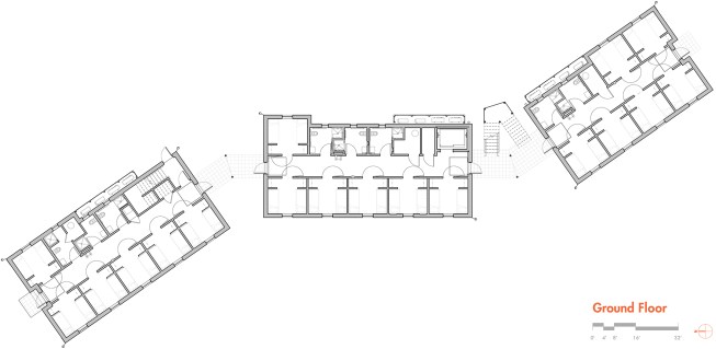
Three Portland firms interviewed for the job—Kaplan Thompson Architects, Simons Architects, and Briburn—and all three got it, owing to the client’s wish to make the project stronger through a diversity of design approaches. Ultimately, Kaplan Thompson took the lead on the overall project, Simons Architects designed the 6,380-square-foot dining commons, and Briburn designed the 8,893-square-foot dormitory. Although the teams claim credit for their individual contributions, they are resolute about their collaboration throughout the project.

“We compete on work as firms—and we are all within walking distance from each other—but we put that aside to fulfill this project,” says Jesse Thompson, AIA, founding principal of Kaplan Thompson. “There is a tradition in New England in the common good being regarded as greater than the individual, and there’s also a strong community work ethic at the school we tried to honor, too.”

Working with the Saco-based landscape architecture firm Richardson & Associates, the firms began with a charrette, probing how to interpret traditional campus models, balance the school’s programmatic needs, and intervene as little as possible within the landscape itself. The firms also surveyed the local ecology in detail, walking the site with noted ecologist Tom Wessels and deciding to pin their campus plan to a line of maple trees.

The resulting scheme, which spans just over 8 acres, is just as thoughtful. To the east lies the school’s edible landscape, a field bearing produce that feeds students and staff. The new dormitory, meanwhile, marches up a small hill to the west. By creating three modestly scaled residential buildings in the form of barns, inspired by local vernacular and united by open-air walkways, Briburn was able to make thousands of square feet seem like it had always been there. The buildings also provide flexibility to the school, which hosts eight different program types, from day-long STEM field trips to week-long intensive camps to professional development workshops for teachers.

“The school wanted the architecture to be recessive to the land because they wanted buildings for kids who aren’t supposed to be in buildings. They are supposed to be out in the land learning,” says Christopher Briley, AIA, founding partner and principal architect at Briburn. “So, before we knew what our roles were, we really tried to get the first part right.”

Tasked with sheltering the school’s 200 hungry learners, Simons Architects designed a spacious education and dining commons, which was inspired in its form by the site’s existing 1794 farmhouse. Inside, there is room for gathering and group work—not to mention eating—and a commercial, fully electric kitchen that requires no combustion, relying on electrical induction instead. Outside, the Simons design team created a deep, south-facing porch that engages the site and supports 200 solar panels on the roof, which, along with the ground-mounted photovoltaic array, produces nearly 348,000kWh of energy and 105% of the school’s needs.

Furthering the team’s environmental goals, water leaves the site cleaner than when it entered, thanks to carbon filtration and ultraviolet light; the system treats wastewater without chemicals across the entire school, as well as gray water for the school’s fields and gardens. While both the dormitory and dining commons were designed and constructed to meet the Living Building Challenge, the process to get there was uncertain.

“We had to invent it as we went along, but we gained traction,” says Scott Simons, FAIA, founder, partner, and principal of Simons Architects. His partner and fellow principal Ryan Kanteres, AIA, agrees, noting that hiring three firms also strengthened sustainable design in Maine overall.

“If you have three offices doing a project, you multiply the knowledge base out there for working with the Living Building Challenge,” Kanteres says. “We’ve learned so much from each other and we’ve become stronger architects.”

This article first appeared in the July/August 2023 issue of ARCHITECT.

PROJECT CREDITS
Project: The Ecology School, Saco, Maine
Client/Owner: The Ecology School
Architects: Kaplan Thompson Architects, Portland, Maine. Jesse Thompson, AIA, Danielle Foisy; Briburn, Portland. Chris Briley, AIA; Simons Architects, Portland. Ryan Kanteres, AIA
Mechanical Engineer: Nason Mechanical Systems
Structural Engineer: Thornton Tomasetti (Becker Structural Engineers)
Electrical Engineer: Swiftcurrent Engineering
Civil Engineer: Ransom Consulting, Inc.
Construction Manager/General Contractor: Zachau Construction
Landscape Architect: Richardson & Associates Landscape Architects
Specifications Consultant: Kalin Associates
Materials Research: Integrated EcoStrategy
Foodservice Consultant: Advanced Food Systems
Size: 15,273 square feet

MATERIALS AND SOURCES
Acoustical System: F-Sorb: Acoustical Wall & Ceiling Panels; Cardinal Acoustics, Inc.: Direct Attached Wood Wool Ceiling Panels
Bathroom Fixtures: Elkay: EZH20 Bottle Filling Station & Single ADA Cooler; Aquatic: 1323C, 1363BFSD; Lixil: Colony Soft Single Control Lavatory, MSB Molded Stone Mop Service Basin, Reliant 3 Single Control Lavatory Faucet; Moen: Align Posi-Temp Shower Trim T2192 Series, Align Posi-Temp Single-Handle Valve Trim Model T2191; Toto: Commercial Flushometer 1.0gpf CT705U(L)N(G), Commercial Wall-Mount Lavatory, EcoPower Flush Valve
Ceilings: Armstrong Ceilings: Suspension System Prelude, Ultima Health Zone Ceiling Panels
Concrete: CETCO: Waterstop RX; Dragon Product Company: Dragon Slag
GCP Applied Technologies: Adcor ES, ADVA 140M, DARASET 400, Darex II AEA
W.R. Meadows: Duoguard Citrus, Duoguard II, Duoguard N.E.
Countertops: Brushed Stainless Steel; Reclaimed cast iron trough sink
Exterior Wall Systems: Hancock Panels: Pre-fabricated FSC Pine & Spruce Wall Panels; Proclima: Intello Plus High-Performance Vapor Retarder, Solitex Mento System, Solitex Adhero
Flooring: Forbo: Marmoleum Modular, Sustain 1195; Daltile: Color Wheel Collection Linear, Keystones Colorbody Porcelain Mosaics, Portfolio Colorbody Portcelain Mosaics
Glass: ASI Group: Channel Frame Mirror 0620, American Specialties Model Number 8287
Gypsum: USG: EcoSmart Panels Firecode X
HVAC: Daikin: VRV (RXTQ36TAVJ9), FXAQ; Greenheck Fan Corporation; Knauf: Manson Insulation Alley Wrap B FSK Jacket; NEFCO: Emlok Adjustable Swivel Ring Hanger, Clevis Hanger, Clevis Hangers with Wielded Shield, Clevis Hangers Copper-Gard, Pipe Covering Protection Shield; Renewaire: ERV (HE-2XJINH)
Ruskin: Standard Access Doors, Heavy Duty Backdraft Damper, Ceiling Fire Damper
Insulation: Carlisle: EPS rigid foam
Advanced Fiber Technology: Supreme Cellulose Insulation, AFT Carbon Smart Loose-Fill Cellulose
IQ Fibers: IQ Fibers Insulation
Rockwool: Exterior Stone Wool Insulation Unfaced
GAF: EnergyGuard NH, EnergyGuard NH Ultra Polyiso
Kitchen fixtures: CaptiveAire: All Electric Exhaust Ventilator System Cooking Suite
Lighting: Metalux: SNLED Lensed; Columbia Lighting: CSL LED Strip Light, Escalante Stairwell Luminaire, Contemporary LED Wall Mount; Satco|Nuvo: Nuvo 62-1057; LightFrame: LC4SL, LF4SL; LiteBox: LED Downlight; Bruck: Round Cylinder Down
Metal: Clark Dietrich: RC Deluxe Resilient Channel
Paints and Finishes: Benjamin Moore: Arborcoat Exterior Oil Stain Semi Solid; DAP: DRYDex Spackling; Sherwin Williams: PrepRite ProBlock Interior/Exterior Latex Primer/Sealer, Pro Industrial Acrylic Coating Semi-Gloss, ProMar 200 HP Zero VOC Interior Latex Low Gloss Eg-Shel, ProMar 200 HP Zero VOC Interior Latex Semi-Gloss, ProMar 200 Zero VOC Eg-Shel Finish, ProMar 200 Zero VOC Interior Latex Low Sheen Eg-Shel, ProMar 400 Zero VOC Interior Latex Primer, SuperPaint Exterior Acrylic Latex Satin
Photovoltaics or other Renewables: SolarEdge: Optimizers, Inverters
APA Solar Racking: Earth Screws
IronRidge: XR100 Rail and Hardware
SnapRack: Standing Seam Metal Roof Attachements
Plumbing and Water System: Uponor: AquaPEX tubing, ProPEX LF Brass Ball Valve, ProPEX LF Brass Commercial Ball Valve, ProPEX LF Brass Fittings, ProPEX LF Brass to Copper Ball Valve
Viego: ProPress Fittings and ProPress XL-C Fittings, ProPress Zero Lead Check Valves, PureFlow Bronze Zero Lead PEX Press Fittings
Roofing: Metal Sales Manufacturing Corp: 24-gauge Acrylic-Coated Galvalume CF
Structural System: Materiaux Blanchet: FSC Certified Dimensional Lumber
Nordic Engineered Wood: Nordic Lam, Nordic Joist
Walls: Hancock Panels: Pre-fabricated FSC Pine & Spruce Wall Panels
Windows and Doors: Oregon Door: Architectural Series Flush Wood Door – Agrifiber Core w/ Wood Face; Acudor: FW-5050 Fire Rated Door; Kawneer: 350T Insulpour Thermal Door, 451T Front Glazed with Isolock Thermal Break; Alpen: Zenith Series Casement & Awning; Velux: Triple Glazed Super Low Energy Solar Protection Skylight

Upcoming Events

  • Design Smarter: Leveraging GIS, BIM, and Open Data for Better Site Selection & Collaboration

    Live Webinar

    Register for Free
  • Slate Reimagined: The Surprising Advantages of Slate Rainscreen Cladding

    Webinar

    Register Now
  • The State of Residential Design Today: Innovations and Insights from RADA-Winning Architects

    Webinar

    Register for Free
All Events