The Cumberland Residence

Project Details

Project Name
The Cumberland Residence
Location
GlendaleCA
Project Types
Single Family
Project Status
Built
Year Completed
2015
Size
4,569 ft²

Project Description

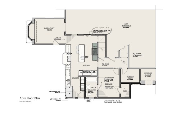
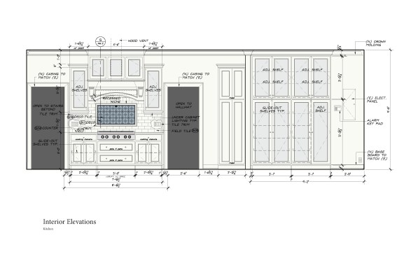
Our client’s vintage 1923 Neo-Classical home was ready for another upgrade. The project included a redesign of the basement and maid quarters, master bath and major overhaul of the kitchen. The new kitchen highlights our clients interior palette of crisp whites and vibrant hues. The classic detailing in the cabinetry accentuate the decorative tile back splash of the range. The kitchen island is fashioned in a classic style and anchors the surrounding white cabinetry by its attractive blue color. A small eating area was incorporated in the island as well more storage for counter appliances and food prep. A large pantry / storage area was designed at the far end of the kitchen, opposite of the new laundry area. The kitchen is now both a beautiful and functional space that maximizes the square footage while streamlining and subtly delineating work areas.

Upcoming Events

  • Design Smarter: Leveraging GIS, BIM, and Open Data for Better Site Selection & Collaboration

    Live Webinar

    Register for Free
  • Slate Reimagined: The Surprising Advantages of Slate Rainscreen Cladding

    Webinar

    Register Now
  • The State of Residential Design Today: Innovations and Insights from RADA-Winning Architects

    Webinar

    Register for Free
All Events