The Baboolal Residence

Project Details

Project Name
The Baboolal Residence
Location
Chapel HillNC
Project Types
Custom Home
Project Scope
New Construction
Shared By
Kim Weiss
Project Status
Built
Year Completed
2021
Size
2,400 ft²
Team
Architect: Arielle Condoret Schechter, AIA
Photographer: Tzu Chen

Project Description

Frustrated by the wasted space and illogical planning of their cookie-cutter subdivision house, the Baboolals wanted a new, modern, Net Zero home, custom-designed to their exact needs and lifestyle, with a strong indoor-outdoor connection.

Programmatically, the family required contrasting elements:

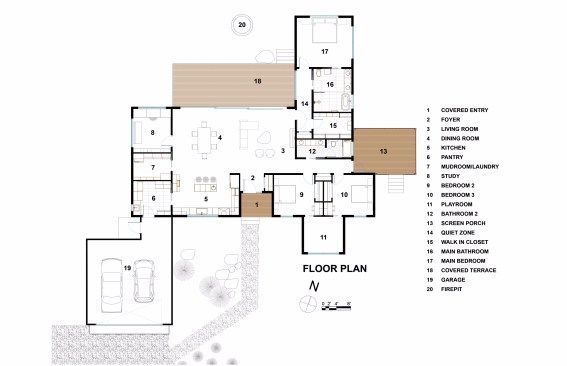
Public Zone –– The Baboolals have two young children and pets, so they wanted an open, airy, “public zone” where family and friends would be together. This zone, the heart of the house, includes a gourmet kitchen, dining/living spaces, and a broad deck across the back of the house. The entire north wall is composed of operable glass doors, built to passive-house standards for energy efficiency, that provide a constant visual and physical connection to the outdoors. A study/music room, an ample pantry, a laundry room, and the entrance to the two-car garage are also part of the public zone.

The architect custom-designed all of the walnut cabinetry in the kitchen, baths, and throughout the house. The flooring is hickory.

Private Zone –– The family also needed a “private zone” for parents and kids to have separate bedroom suites befitting their separate needs. For the parents — a pediatric anesthesiologist and a pediatric nurse — this volume also provides a “quiet zone” for transitioning from their stressful professional lives to their home life, as well as the main bedroom, a spa-like bath, and a screened porch cantilevered from the eastern elevation. A playroom completes the kids’ portion of the “private zone” and is accessible only from their separate bedrooms.

The Shakkei Solution –– The Baboolals’ property was an initial challenge. Neighbors’ homes, a residential development, and the forest surround the western and southern portions of the site. The northern side was clearly the best option for a family lawn and fire pit. That portion also provided the best view from the house and deck: a natural grassy meadow that’s protected from future development because it’s actually a large septic field. Since the meadow is part of a neighbor’s estate, the architect and her clients invoked “Shakkei,” the Japanese concept of “borrowing” a landscape or scenery to enjoy from the house and deck.

In plan, the one-story, 2400-square foot house is based on a simple, fluid spatial progression. The covered main entrance on the southern elevation leads into the foyer, which flows into the main living space, which overlooks the “borrowed scenery” and opens directly onto the deck.

The Baboolal residence is a high-performance, Net Zero house. Features that contribute to this high level of sustainable design include:

• An air-tight building envelope
• Photovoltaic array on the roof
• White cool-roof membrane
• An abundance of glazing that provides optimal natural light and ventilation throughout the house
• Triple-glazed passive House-rated windows and doors (by Awilux via Eurostar Fenestration)
• Deep roof overhangs to protect and shade the glazing/interior.
• High SEER heat pump system
• Nichiha fiber cement and Cypress wood siding
• Thermory decking

Upcoming Events

  • Design Smarter: Leveraging GIS, BIM, and Open Data for Better Site Selection & Collaboration

    Live Webinar

    Register for Free
  • Slate Reimagined: The Surprising Advantages of Slate Rainscreen Cladding

    Webinar

    Register Now
  • The State of Residential Design Today: Innovations and Insights from RADA-Winning Architects

    Webinar

    Register for Free
All Events