The Atrium House

Project Details

Project Name
The Atrium House
Location
BostonMA
Project Types
Custom
Project Scope
Interiors
Shared By
dmadsen
Project Status
Built
Size
3,300 ft²

Project Description

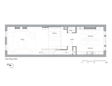
The bright, sun-lit atrium that greets the visitor to this Back Bay townhouse is a welcome contrast to the building’s brooding 19th century entry and common hallway. A skylight 38’ above the entry bathes the dining table and banquette at the center of the apartment with natural light, and plays across the three story dry-laid gray schist wall. A gleaming kitchen and a warm, modern living room open out to either side, and a powder room hides behind panels of reconstituted gray wood veneer. Where there used to be partitions, the space now flows uninterrupted from the front to the rear of the building.

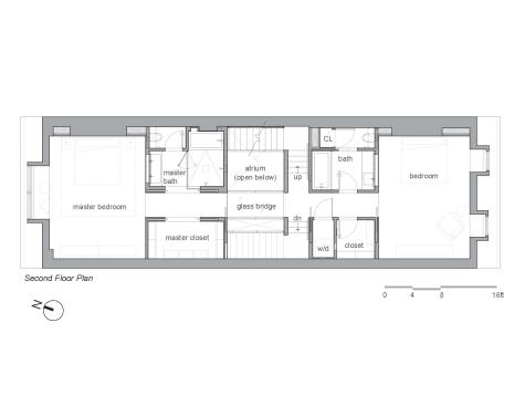
On the second floor, a transparent glass bridge spans across the atrium, connecting two bedroom suites and permits light to penetrate down to the entry level. At the master suite, parting pocket doors allow the master bathroom, detailed in cool Carrara marble and dark wood veneer, to flow into the bedroom and dressing room.

At the top level, a home office opens onto a private reading terrace in a new dormer, and overlooks the atrium and entry below. Across the atrium is a media room, a guest bathroom and stairs to a renovated roof deck. The roof deck, with 360 degree views of the city, stainless steel kitchenette, gas fire-pit, and built-in Ipe banquettes make it the perfect space for evening entertaining.

Upcoming Events

  • Design Smarter: Leveraging GIS, BIM, and Open Data for Better Site Selection & Collaboration

    Live Webinar

    Register for Free
  • Slate Reimagined: The Surprising Advantages of Slate Rainscreen Cladding

    Webinar

    Register Now
  • The State of Residential Design Today: Innovations and Insights from RADA-Winning Architects

    Webinar

    Register for Free
All Events