The Assembly Building At Clipper Mill

Project Details

Project Name
The Assembly Building At Clipper Mill
Project Types
Other
Project Scope
Adaptive Reuse
Shared By
Suren
Project Status
Built
Size
62,794 ft²
Room or Space
Other

Project Description

2008 RADA
Adaptive Reuse / Grand

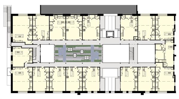
So many urban loft conversions all but obliterate the building’s sense of history. This one celebrates it as a ruin, rough edges and all. Built circa 1890, this part of the historic mill complex had been slowly disintegrating when a fire burned the roof off, leaving only a masonry-and-steel shell. In an effort that David Benn, AIA, likens to putting a ship in a bottle, the design team inserted a ground-level concrete plinth that houses office space. Above are two floors of two-level loft units that align with the existing double-height arched windows. Light filters into the commercial core through pyramid skylights cut into a second-story open-air courtyard. Lit at night, they glow upward like jewels.

The architects opened another three-story light well that exposes a basement-level stream. “We cut an opening into the stream, so theoretically you could be sending a fishing line down,” Benn explains, “but it looks more like the sewers of Paris, with a cobbled bottom.” To make living there even more fun, a hike-and-bike greenway also runs through the renovated building.

The jury applauded the firm for preserving a sense of the original shell. “These buildings are being demolished so fast, and to keep this is great,” said one judge.

Upcoming Events

  • Design Smarter: Leveraging GIS, BIM, and Open Data for Better Site Selection & Collaboration

    Live Webinar

    Register for Free
  • Slate Reimagined: The Surprising Advantages of Slate Rainscreen Cladding

    Webinar

    Register Now
  • The State of Residential Design Today: Innovations and Insights from RADA-Winning Architects

    Webinar

    Register for Free
All Events