Teweles and Brandeis Grain Elevator

Project Details

Project Name
Teweles and Brandeis Grain Elevator
Location
Sturgeon BayWI
Architect
La Dallman
Project Types
Cultural
Project Scope
Adaptive Reuse
Shared By
Madeleine D’Angelo
Project Status
On the Boards/In Progress
Size
7,557 ft²

Project Description

This project was recognized with a Citation in the 68th Annual Progressive Architecture Awards and featured in the March 2021 issue of ARCHITECT.

This project shows how the structures that dot the landscape and are inherently recognized by us as a certain typology could be transformed for reuse, recognition, and a sense of place.” —Juror Daimian Hines, AIA, founder, Hines Architecture + Design

Built in 1901, the Teweles and Brandeis Grain Elevator on the shore of Sturgeon Bay, Wis., is a reminder of the area’s rich agrarian history. Midsize grain elevators, once a staple of the landscape, provided farm cooperatives a central location for the collection and distribution of their produce to distant markets via rail and sea.

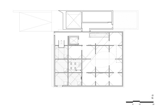
Milwaukee- and Boston-based La Dallman conceives the iconic structure’s adaptive reuse as a new amenity and tourist destination for Door County. Decommissioned and idle since the 1960s, when the rise of industrial farming techniques rendered those locally based collective ventures inviable, the 40-foot-wide by 50-foot-long old-growth, nail-laminated timber structure is divided into 20 vertical grain bins, each 10 feet square, raised on columns. Topped by a headhouse, which previously enclosed machinery for moving grain, the structure’s distinctive silhouette in the city’s skyline is preserved while its role as a local landmark is transformed for new generations.

The architects reimagine the originally windowless utilitarian structure as an opportunity to carve out spaces for gathering and performance through strategies of subtraction and addition. A linear addition to the structure’s west side houses a catering prep kitchen and restrooms on the ground level, adjacent to a primary gathering space situated within the field of columns that support the old grain bins above. A second and third floor are inserted within the elevator compartments, with surgical cuts made in the walls to create a series of intimate, curvilinear gathering spaces that can support multiple activities, such as exhibits recounting the structure’s and area’s histories.

New, meandering catwalks allow exploration of the original rigidly compartmentalized spaces. A new fourth floor—within the grain elevator’s headhouse—telescopes from the main roof and is reclad in glass to create both a glazed aerie that allows visitors to overlook the city’s harbor and a beacon for the community.

Project Credits
Project: Teweles and Brandeis Granary
Location: Sturgeon Bay, Wis.
Client: Sturgeon Bay Historical Society Foundation · Christie Weber, Kelly Catarozoli, Shawn Fairchild, Laurel Hauser (SBHSF board)
Design Architect: La Dallman, Boston and Milwaukee, Wis. · James Dallman, AIA, Grace La (founding principals); Aimilios Davlantis-Lo, Mark Pantano, Joel Koeppen, Nhi Tran, John Wang, Isabel Chun, Jocelyn Chiou (project team)
Structural Engineer: Silman · Jeff Beane
MEP Engineer: Landmark Facilities Group · Tom Newbold
Civil Engineer: GEI Consultants · Paul Killian
Code Consultant: CR Design · Chris Rute, AIA
Geotechnical Engineer: GEI Consultants
Building Mover: DeVooght House Lifters
Construction Manager: SMET Construction Services
Project Partners: City of Sturgeon Bay; Door County Community Foundation; Wisconsin Department of Natural Resources; Wisconsin State Historical Preservation Office
Size: 7,557 square feet
Cost: Withheld

Upcoming Events

  • Design Smarter: Leveraging GIS, BIM, and Open Data for Better Site Selection & Collaboration

    Live Webinar

    Register for Free
  • Slate Reimagined: The Surprising Advantages of Slate Rainscreen Cladding

    Webinar

    Register Now
  • The State of Residential Design Today: Innovations and Insights from RADA-Winning Architects

    Webinar

    Register for Free
All Events