Terra Heights

Project Details

Project Name
Terra Heights
Location
TulsaOK
Project Types
Single Family
Project Scope
New Construction
Shared By
Madeleine D’Angelo
Project Status
Built
Year Completed
2019
Size
3,550 ft²

Project Description

This article appeared in the April 2022 issue of ARCHITECT.

The Heights historic neighborhood, located just north of downtown Tulsa, Okla., has enjoyed a revival over the last few decades. Formerly known as Brady Heights, the neighborhood had been named for W. Tate Brady, a founding father of Tulsa in 1898 and a successful businessman and politician. Many residents believed, however, that his membership in both the neo-Confederate group Sons of the Confederacy and the white supremacist organization Ku Klux Klan outweighed his industrious legacy, and the neighborhood association voted to change its community’s name in 2021.

Listed on the National Register of Historic Places since 1980, The Heights and many of its houses reflect the varied tastes of original owners, setting an architectural standard for middle- and upper-class developments. Over the years, the community has become close-knit through renovations of its eclectic residences, encompassing architectural styles such as Queen Anne, Victorian, Georgian Revival, and Craftsman. One new addition, a 3,550-square-foot, rammed-earth house by the local firm 1Architecture, continues the community’s eclectic tradition, adding Prairie School influences into the mix and furthering the conversation surrounding sustainable residential construction.

Nick Denison, Assoc. AIA, a 1Architecture principal, was approached by a friend in 2017 to design a residence in The Heights. As a designated historic neighborhood, The Heights has a number of restrictions and policies for newly constructed homes, including architectural styles. Encouraged by the site’s sloped profile, 1Architecture suggested a Prairie School–style project, emphasizing the horizontal rather than the vertical through bands of windows, striated exterior walls, and “low-slope hip roofs that help showcase the [exterior walls],” Denison says.

But the project, ultimately dubbed Terra Heights, has another defining feature: The house is constructed of rammed earth, a material that interested the Terra Heights clients due to its low embodied energy and durability. Ultimately, over 90% of the project’s mass was sourced from within 100 miles of the construction site; the residence also features efficient operational systems and, in conjunction with its materials, is designed to last multiple generations.

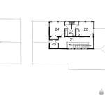
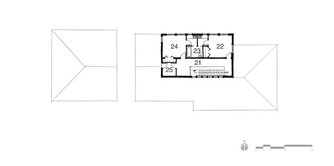
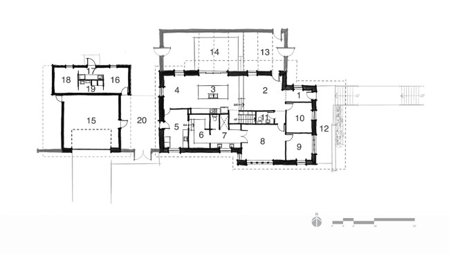
The project, completed in 2019, greets visitors with a sweeping cantilevered roof, spanning a depth of 13 feet. While the extension initially called for a steel frame, the design was simplified to wood construction. The interior features a split-level main floor and a partial second story. The kitchen and dining areas, located toward the back of the house, are raised to accommodate the slope of the site. Neutral, earthy tones of white finishes, wood accents, and concrete floors accentuate the construction. Denison chose this palette as “everything works in tandem with the texture and color” of the rammed earth walls.

Terra Heights is one of four structures designed to accommodate a multigenerational family. Adjacent to the site is a Craftsman residence for the owner’s parents, with each property containing an on-suite attached to a garage. The two homes are linked by adjoining courtyards, providing an opportunity for public interactions among the families; however, each residence accommodates private spaces for intimate moments. The gathering space features a rammed earth fireplace and open rustic steel pergola, extending the interior earthy tones into the outdoors. Board form concrete walls assist in the division of the spaces as well as further emphasize the horizontality of the overall design. The walls of the courtyards also assist in protection from hot summers and high winds.

Though 1Architecture does not typically design residential homes, Denison enjoyed working on a project that was “more form fitting for human size.” The scale, aesthetic, and design of Terra Heights functions as an admirable contemporary residence in The Heights historic neighborhood.

PROJECT CREDITS
Project: Terra Heights, Tulsa, Okla.
Client/Owner: Jacob and Meghan Johnson
Architect: 1Architecture, Tulsa, Okla. Shelby Navarro (founding principal, CEO), Nick Denison, AIA (principal)
Structural Engineer: 360 Engineering Group, Elli Johannsson
Construction Manager: Aussie Built, Mick Gower
General Contractor: Aussie Built, Mick Gower
Landscape Architect: Naked Gardener, Nance Hawkinson
Size: 3,550 square feet
Cost: $791,237

MATERIALS AND SOURCES
Appliances: Fisher Paykel built-in energy efficient refrigerator, 48” Italian Bertazzoni Professional range with commercial vent hood
Cabinets: Laminate, Custom designed and fabricated cabinetry, Custom bar area with built-in wine storage and refrigeration, Soft close doors and drawers on all cabinets Ceilings:
Countertops: Quarts
Exterior Wall Systems: Rammed Earth – The exterior construction method of the Prairie House is stabilized rammed earth by master carpenter Mick Gower of Aussie Built, Inc. Although scarce in the midwest, rammed earth construction is widely used in countries with strict building codes and requirements such as Australia and Switzerland and is gaining in popularity across the United States. It is hailed for its energy saving properties, resistance to wind & fire, low maintenance, extreme durability, indoor air purity, and substantial look & feel. In performance and construction method it is most closely related to formed concrete structures. https://www.ncbi.nlm.nih.gov/pmc/articles/PMC6539055/
Flooring: Polished concrete floors on lower split level with wood on upper level. Custom tile floors + shower in upstairs bathroom. Oversized full tile shower in master bathroom Furniture: Custom millwork include rift-sawn white oak book shelving,
HVAC: At a 45 SEER rating, Terra Heights Utilizes the world’s most efficient
triple variable geothermal system
Hydronic radiant in-floor heating system
Water to air forced air heating and cooling system
Geothermal domestic hot water
Entire slab is a floating fully insulated concrete system with pex hydronic
tubing split into 8 independent zones
Cottage HVAC and hot water systems are fully independent inverter
mini-split and on-demand hot water to provide redundancy.
https://www.climatemaster.com/Homeowner/side-links/products/product-details/trilogy
Kitchen fixtures: All pendants sourced from West Elm
Lighting Control Systems: Voice controlled smart-home implementation
Lighting: All pendants sourced from West Elm or Ikea, 4” Gimbal fixtures with museum grade LED bulbs throughout
Metal: Steel
Roofing: Fortified Silver Roofing Certification
As one of Oklahoma’s first Fortified Silver certification homes the structure has been engineered and reinforced to withstand high winds and hail bringingsignificant insurance savings and longevity to the house.
Reinforced sheathing throughout
Completely sealed roof deck
All glazed openings, entries, and garage doors protected
Strengthened gable ends and overhangs
Reinforced soffits
Site and Landscape Products: Rammed earth courtyard with cement caps, including firepit and fountain, Steel beam trellis, Tile pavers + concrete steps, Anodized aluminum guttering system
Windows and Doors: High-grade solid core craftsman style interior doors throughout home, 18” deep concrete window sills

Upcoming Events

  • Design Smarter: Leveraging GIS, BIM, and Open Data for Better Site Selection & Collaboration

    Live Webinar

    Register for Free
  • Slate Reimagined: The Surprising Advantages of Slate Rainscreen Cladding

    Webinar

    Register Now
  • The State of Residential Design Today: Innovations and Insights from RADA-Winning Architects

    Webinar

    Register for Free
All Events