Telegraph Hill

Project Details

Project Name
Telegraph Hill
Location
San FranciscoCA
Project Types
Project Scope
Renovation/Remodel
Shared By
dmadsen
Project Status
Built
Size
3,636 ft²

Project Description

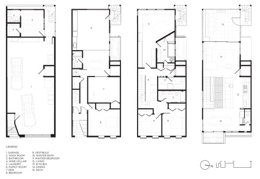
The original house suffered from a plain, unarticulated stucco façade and unusually narrow, disjointed interior spaces. The entry was separated from the main living spaces by two floors of stairs and dark halls creating an uninviting first impression. With the tall ceilings and the location in mind, the architects recognized the potential to transform the house by flooding the entry and main living space with light while also showcasing stunning views of the Golden Gate Bridge, Coit Tower and the Transamerica Pyramid.
To open up to views and light, the entire upper level is now composed of one great room with windows on three sides. A translucent floor panel above the second floor landing/gallery and a perforated metal screen that wraps from the ceiling of the top floor down to the entry illuminate the entire stair hall with diffused light. The stairway itself incorporates wood, steel and glass and the perforated metal panel creates textural and visual continuity between floors, and these elements pull visitors up through the space to the main floor.
Inspired by clients who love to cook and entertain, the open kitchen was customized to function well without interfering with the serenity and flow of the space as a whole. Deep, pull out cupboards maximize accessible storage and extra deep counters feature pockets to hide appliances, dishes, cookware, and utensils to maintain a clean line that compliments the open plan.
The third floor envelope was pulled back from the main façade to allow for planters to grow herbs and a small outdoor deck off the dining room for grilling. The main deck takes advantage of the sweeping views and serves as an outdoor room with fireplace, windscreen, custom planters, and an operable awning.
Throughout the home is a subtle gray and white palette that lets the views and materials be the center of attention. The palette spills out to the exterior clad in grey limestone panels and to the deep metal frames around the windows and garage.

Upcoming Events

  • Design Smarter: Leveraging GIS, BIM, and Open Data for Better Site Selection & Collaboration

    Live Webinar

    Register for Free
  • Slate Reimagined: The Surprising Advantages of Slate Rainscreen Cladding

    Webinar

    Register Now
  • The State of Residential Design Today: Innovations and Insights from RADA-Winning Architects

    Webinar

    Register for Free
All Events