Tasty Kabob

Project Details

Project Name
Tasty Kabob
Location
1624 Boro PlMcLeanVA22102
Project Types
Hospitality
Project Scope
New Construction
Shared By
CORE DC
Project Status
Built
Year Completed
2020
Size
2,000 ft²
Team
Principal: Dale Stewart,
Job Captain: Christopher Peli
Junior Designer: Yitao Wang

Project Description

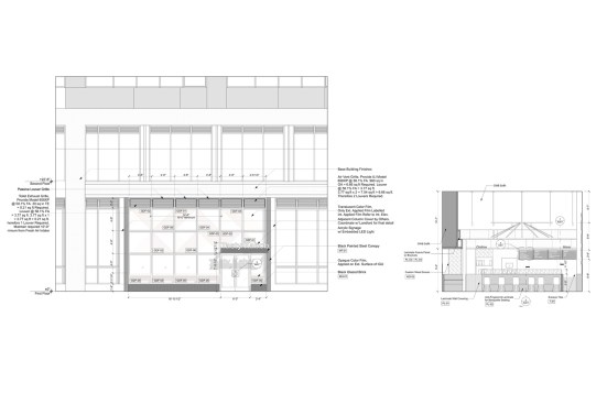
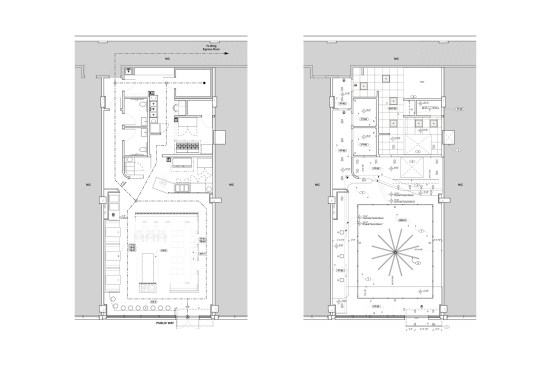
Tasty Kabob challenged CORE to develop a first generation prototype design that translates the original food truck concept into a new, clean and timeless, yet modern design with a memorable visual identity, one that represents an Afghani cuisine centered around food honesty.

Tasty Kabob is a fresh halal food truck concept that currently has six trucks operating in the Washington, DC area. The client’s goal was to expand its business by adapting its original concept into welcoming brick and mortar locations. CORE worked closely with the client on the prototype design for the first location in Tysons, VA, which included the design for the space’s storefront and building façade, in addition to the interior. The vision for the fast casual restaurant focused on providing the favorite Afghani cuisine of the founders, father and son team John and Steve Hanifi, without creating an “ethnic” feeling restaurant. Thus, the team prioritized envisioning the brand and architecture as new, clean, and fresh versus an “old country” heritage throwback. An inviting seating area and well thought through queue line create an intuitive and efficient fast casual dining experience. To accommodate Tasty Kabob’s emphasis on order-ahead and delivery, the team focused on the pre-ordering process, providing a designated queue and pick-up area to maximize speed of service. Photography: Ron Ngiam

Upcoming Events

  • Design Smarter: Leveraging GIS, BIM, and Open Data for Better Site Selection & Collaboration

    Live Webinar

    Register for Free
  • Slate Reimagined: The Surprising Advantages of Slate Rainscreen Cladding

    Webinar

    Register Now
  • The State of Residential Design Today: Innovations and Insights from RADA-Winning Architects

    Webinar

    Register for Free
All Events