Tanatorium

Project Details

Project Name
Tanatorium
Location
Zaragoza, Spain
Project Types
Community
Project Scope
New Construction
Shared By
sashaboglu
Project Status
Built
Year Completed
2015
Size
2,110 ft²
Team

Project Description

FROM THE ARCHITECTS:

The
Tanatorium frames very important feelings of its users through the evocation of
God and the cavern. A steriotomic architecture formed by  perforated
enveloping is born from earth to protect humans when they say goodbye to their
deceased. Through a formal gesture, this concrete cavern opens in
diagonal direction to the sun, worshiping this primitive god.

The
site is a pine wood on the outskirts of a little town, the building is placed
in its southern limit to define a new urban edge with a monumental
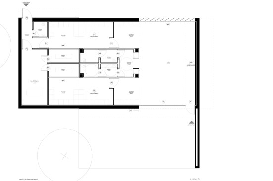
architectural character. The public access is on the west side at the end of a
pedestrian path coming from the urban area and leading into a hall space
oriented South that articulates circulations to funeral parlors and restrooms.

Throughout
an exterior metallic louvers filter the sunlight draws inside with its projected
outlines and recreates the feeling of time passing by into a visual level,
which marks the cyclic movement of shadows. The louver pattern has been
designed to create shadows in summer and allows the sunlight to come in winter
to collaborate in the building energetic performance.

The
materiality of the building is white concrete, finished in several superficial
treatments, galvanized and pre-laquered steel corten, transparent and
translucent glass, ceramic tiles and gypsum cast finished white.

Upcoming Events

  • Slate Reimagined: The Surprising Advantages of Slate Rainscreen Cladding

    Webinar

    Register Now
  • The State of Residential Design Today: Innovations and Insights from RADA-Winning Architects

    Webinar

    Register for Free
  • Specifying Smarter with Copper-Clad Aluminum (CCA) Metal-Clad Cable

    Webinar

    Register for Free
All Events