Tan Residence

Project Details

Project Name
Tan Residence
Location
PasadenaCA
Architect
design21, LLC
Project Types
Shared By
dmadsen
Project Status
Built
Size
1,750 ft²

Project Description

The presented residential project is a successful example of simplicity in respect of design, material selection and affordability.

The project is for a young family with two kids and is located in a beautiful residential neighborhood in Pasadena, California. An existing single story residence needed to remain in the front of the narrow long lot and the new residence was planned in the back with maximal separation between the two houses to create privacy. The already existing carport was extended to accommodate the required 4-car covered parking and is used as the separation element between the existing and the new residence.

The new 1830sf residence is a two story house with an open floor plan that reflects the personality of the client as well as the unique property situation and works with its surroundings of tress and buildings, yet it breaks the design tradition of Pasadena. The open floor plan fascinates through its simplicity and orientation of the different rooms.

On the ground floor a large, loft-like space serving as the living room, kitchen and dining room with big lift sliding-doors that open the house up to the outside builds the heart of the residence. Next to the kitchen and dining room a covered wood-deck creates an interesting outside space for the hot summer nights in Pasadena.
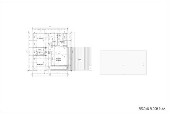
The second floor has also a very simple and straightforward room organization and consists of 2 kid’s bedrooms with bathroom, a small day-office and master suite with direct access to a balcony and master bathroom.

The material selection for the house was kept to a minimum to emphasize the simplicity.

Upcoming Events

  • Design Smarter: Leveraging GIS, BIM, and Open Data for Better Site Selection & Collaboration

    Live Webinar

    Register for Free
  • Slate Reimagined: The Surprising Advantages of Slate Rainscreen Cladding

    Webinar

    Register Now
  • The State of Residential Design Today: Innovations and Insights from RADA-Winning Architects

    Webinar

    Register for Free
All Events