Tamarindos Apartment

Project Details

Project Name
Tamarindos Apartment
Architect
Mayer Hasbani
Project Types
Single Family
Project Status
Built
Year Completed
2014
Size
4,844 ft²

Project Description

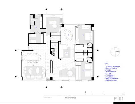
TAMARINDOS apartment was an intervention proposal that set the opportunity to improve a typical luxurious apartment into a design backed up by new habits and processes involving an innovating way of life. The ground floor hosts the core areas: dining, living and family room. Also, it incorporates two kid’s bedroom followed by a play area with a brightly colored roof.The upper level contains the main bedroom designed entirely to provide the client a relaxed atmosphere combined with a worthy and peaceful work studio. Added value is created by paying attention to every specific detail and useful knowledge of material use. The main circulation separates the public areas from the service and becomes the host of a dazzling sculptured oak stair. The cava also evokes art itself by being a visual auction from every point of the opened space The illumination indicates axes and delimitates the user paths. The opening to the outdoor spaces kept the air condition out of the question and became the answer to provide natural ventilation allowing a more rich environment. TAMARINDOS apt. reflects and feels as an excellent place to have a comfort living, on the other ahdns it reafirms itself as a design piece expressed with brilliant composition and elements developing a big spatial poetry.

Upcoming Events

  • Slate Reimagined: The Surprising Advantages of Slate Rainscreen Cladding

    Webinar

    Register Now
  • The State of Residential Design Today: Innovations and Insights from RADA-Winning Architects

    Webinar

    Register for Free
  • Specifying Smarter with Copper-Clad Aluminum (CCA) Metal-Clad Cable

    Webinar

    Register for Free
All Events