SWIMMING POOL LOUNY

Project Details

Project Name
SWIMMING POOL LOUNY
Location
Rakovnická 2505LounyCZECH REPUBLIC
Project Types
Project Scope
New Construction
Shared By
Olda
Project Status
Built
Year Completed
2020
Style
Modern
Team
Ing. arch.: David Kudla
Ing. arch.: Filip Malý
Ing. arch.: Monika Dorňáková

Project Description

The story of the Louny swimming pool began for us when the municipality made the decision to choose our solution from the five submitted construction proposals. Their focus was on finding a solution meeting the requirements for the specific object equipment and aesthetic qualities appropriate for a public building. Our black noble crystal turned out to be the best fit for these two requirements.

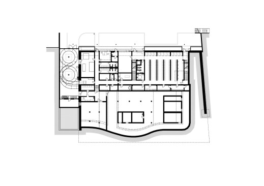
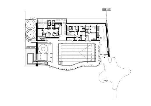
The shape of the public swimming pool is significantly influenced by its location characteristics, so that this new element becomes a natural part of the place. Above all, this influence manifests itself in a generous opening of the pool area to the south into a park garden, and on the other hand in a closing on the north façade with the exception of local openings, such as a cooling terrace protruding from the spa area, from which you can observe exceptional curves of the Bohemian Central Mountains. This solution is accented by a distinct inclination of the roof corresponding to the slope of the local terrain and a tapered northern façade allowing the required greater ground clearance in the pool area; conversely, a lower ground clearance in the northern tract. There you can find rather smaller areas of spa, showers and children’s pool, which do not require a high ceiling. The diversity of the sloping terrain is captured in the grooves sectionalising the façade of the building, which demonstrates a strong connection of the building with the local terrain context. The slope of the roof cladding corresponds to the most significant slope of the terrain.

Moreover, the object makes appropriate use of the local terrain fault, which arose during the construction of the previous pool and forms a document of violent construction intervention. By correctly turning the new building and bringing it to this fault, the original wound healed, and the volume of excavation work was significantly reduced. In addition, both floors of the new building are accessible from the ground and have a smaller volume due to the specific shape of the building, on a more pleasant scale for humans.

The marked contrast between the outdoor and indoor areas of the pool (especially in winter, when passers-by are buried in their coats in freezing weather, while half-naked people are frolicking in the pool hall at pleasant temperatures) is so strong that the glass shell itself has rippled as a result of these two worlds differences. In these curves you can also find the image of rippled water level in the pools or the curves of the nearby hills, which have inspired many local artists. For this impressive solution, considerably elevated glass panes reaching almost 7 meters were used, and even the load-bearing structure of the façade does not divide this glass veil by any horizontal rung. The floor plan then bends significantly into the interior of the building at the point of the main entrance. The presented shape uniqueness is taken over by the edges of the indoor pools, which makes it possible to create a space for a pool staircase, making the pool better accessible even for movement impaired visitors.

The central area of the whole building is a sauna bar, which connects two main parts, namely the water world and spa. The bar is a place to meet and relax and a starting point for further wandering through the building. All the main features of the public swimming hall are on the entrance floor, except for the access to the water slide, to which you need to climb the stairs located in a tower with a dominant raised window situated at the very top of the building and overlooking the unique relief of the landscape.

The whole object is dressed in a classy black colour. Inside, thanks to rich wood panelling, it makes for a very pleasant and warm feeling. Material contrast works on a similar principle as the glass shell – with the contrast of two different worlds: outside/inside. The significant advance of the roof on the southern façade protects from the bright sun in the summer months and gives the whole building the appropriate dynamics together with the side walls in an inclined shape. This inclination is another proof of the local terrain’s influence on the building, which becomes part of the environment.

The town of Louny, where a world-renowned building is already located – the conversion of a brewery into the Benedikt Rejt Gallery by architect Emil Přikryl, has acquired a significant new object: A building striking by its openness, unconcealed view, enticing passers-by to visit, to spend time in its premises, enriching everyday life and changing in different seasons.

Upcoming Events

  • Design Smarter: Leveraging GIS, BIM, and Open Data for Better Site Selection & Collaboration

    Live Webinar

    Register for Free
  • Slate Reimagined: The Surprising Advantages of Slate Rainscreen Cladding

    Webinar

    Register Now
  • The State of Residential Design Today: Innovations and Insights from RADA-Winning Architects

    Webinar

    Register for Free
All Events