Suspended Stair

Project Details

Project Name
Suspended Stair
Location
New YorkNY
Project Types
Single Family
Project Scope
Interiors
Shared By
Madeleine D’Angelo
Project Status
Built

Project Description

This project was selected as a winner in the 2019 Residential Architect Design Awards
Special Entry Category: Architectural Design Detail, Award

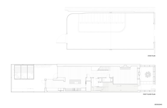
Daylight is a precious resource in a narrow New York City townhouse, and Brooklyn-based O’Neill Rose Architects faced this challenge head-on when remodeling the lower two levels of one into a duplex garden apartment. The need for a stair to connect the two floors in the middle of the unit threatened to block light from one part of the apartment to the other.

The solution that the design team developed is an elegant communicating stair that uses cantilevered and suspended members to make it “float.” Eight narrow steel rods descend from a structural beam embedded in the ceiling above the second floor, providing suspension and support for 17 knife-edged blackened-steel stair treads that emerge from the white plastered wall. These treads are anchored to a structural member concealed within the wall that is in turn bolted to the townhouse’s existing masonry bearing wall to provide cantilever support. The second tread extends the full length of the staircase’s run, providing a minimalist bench that greets visitors upon entry to the apartment.

The continuous stair rail is made from the same material as the stair’s structural components and is attached to the suspension rods to provide necessary diagonal stability to the composition. The rail is the beefiest visible portion of the stair and, coupled with the twists and turns necessary to resolve the stair’s geometry, reads as a rather traditional element within the interior of the vintage building.

Making an architecture that appears to be made of almost nothing requires a certain amount of hidden effort, which the architects admit when they refer to the stair’s suspension as akin to a marionette puppet—a particularly elegant one, at that.

Project Credits
Location: New York
Client: Sam Sullivan and David Moench
Architect: O’Neill Rose Architects, New York . Devin O’Neill
Mechanical Engineer: Nino D’Antonio
Structural Engineer: Ross Dalland
General Contractor: ABR Contracting
Lighting Designer: O’Neill Rose Architects
Size: 32 square feet (stair); 2,042 square feet (unit)
Cost: Withheld

Materials and Sources
Metal: Blackened-steel treads; Steel suspension rods

FROM THE ARCHITECTS:

Our goal for this duplex garden apartment was to create an open, airy interior space that connected visually and physically to the exterior. Our biggest obstacles were a lack of daylight, light due to the fact that it was a garden apartment, and the fact that the shared building stair (for the other townhouse occupants) made a narrow bottleneck at the center of the floor plan. We maximized glazing at the rear that light could reach the center of the building. At the front, we created a sunken courtyard wrapped in zinc to reflect stolen light into the living room. In order to allow as much visual connection between these spaces, we created a communicating stair for the duplex that was as airy and light as possible.

Instead of a traditional stair supported by stringers below, which would bisect the apartment and block views from the front to the back, we created a combination cantilever and suspension structural system which allows the blackened steel treads to float, hanging from above like a marionette puppet.

Project Credits:
Project: Suspended Stair
Architect: O’Neill Rose Architects, New York . Devin O’Neill
Mechanical Engineer: Nino D’Antonio
Structural Engineer: Ross Dalland
General Contractor: ABR Contracting
Lighting Designer: O’Neill Rose Architects

Upcoming Events

  • Design Smarter: Leveraging GIS, BIM, and Open Data for Better Site Selection & Collaboration

    Live Webinar

    Register for Free
  • Slate Reimagined: The Surprising Advantages of Slate Rainscreen Cladding

    Webinar

    Register Now
  • The State of Residential Design Today: Innovations and Insights from RADA-Winning Architects

    Webinar

    Register for Free
All Events