Project Description
Custom / More than 3,000 Square Feet / Grand
The RADA judges were unanimous in their regard for this live/work residence on Spain’s Mediterranean coast, which they called both “muscular” and “poetic.” They might have been even more impressed had they known the project’s backstory. “The client was a Norwegian photographer who lived in Paris,” says architect Tom Kundig, FAIA. “He contacted me in Seattle from Paris to build a house in Spain—on the recommendation of a friend in South Africa.”
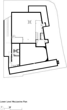
In keeping with that multipolar introduction, Kundig transformed the project’s compact site into a private realm with a distinctly split personality. Above grade, interlocking forms in steel and cast concrete present a largely mute façade. Massive center-pivot doors—Cor-Ten steel at the front, glass at the rear—open the core of the house from the entry courtyard to the rear garden, where the building shell dissolves largely to glass. Below grade, the building spreads beyond its visible footprint, encompassing a two-level complex of photography studios and support spaces. “It virtually fills the site underground,” Kundig says.
“There’s a very strict line between the nature of the studio and the nature of the house above,” says Kundig, who softened the studio’s industrial palette for the living spaces without severting the connection entirely. Stateside artisans produced some “highly crafted parts and pieces,” including custom lighting fixtures. But local tradespeople carried most of the load. Building at a distance isn’t so hard, Kundig says, “if you embrace the local craft. And in Spain, they clearly know how to do concrete.” —Bruce D. Snider