Structured Whimsy

Project Details

Project Name
Structured Whimsy
Project Types
Custom
Project Scope
New Construction
Shared By
Chinnu
Project Status
Built
Room or Space
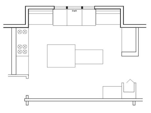
Kitchen

Project Description

K + B Studio/Kitchen
Structured Whimsy

Architects Stuart Cohen, FAIA, and Julie Hacker, AIA, are known for their elegant, timeless designs. And nowhere is their talent more finely expressed than in the kitchen, where they filter a deep knowledge and affinity for classical details through a subtly modern lens. Typically this process ends in an understated palette of materials and precisely aligned clusters of cabinetry and glass. But the owner of this home in Highland Park, Ill., sought a more eclectic look, envisioning a hodgepodge combination of materials and furniturelike cabinetry as focal points. Instead of butting heads over their differences, owner and architects found solutions that struck an agreeable balance between the ordered and the whimsical. “We prefer a visual rhythm, so a space is calming,” Hacker explains, “but we realized we could still have harmony and use varied materials.”

The architects’ willingness to listen encouraged greater acceptance from their client for symmetry and proportion. For instance, an antique pine hutch takes center stage opposite the window wall, but the architects used it to set the scale and detailing for the rest of the space. Built-in cabinets are designed to look like freestanding pieces, with recessed toe-kicks and curved brackets. Proportions of the custom-made cabinets match the hutch, but all millwork is painted white to counterbalance and soften the impact of the piece’s elaborate woodwork.

To justify the varied palette, Cohen and Hacker changed planes to introduce each new material. For example, the marble pastry station on the butcher block island drops down. The change not only indicates the new material but gives the baker a better angle for rolling dough. Repeating materials around the kitchen also results in a more structured atmosphere. The marble reappears as an elongated windowsill along the sink wall, again next to the stove, and also as a countertop on one of the cabinets. “If we make architectural demands on the organization of spaces,” says Hacker, “it makes a big difference in the quality
of the space and how it relates to connecting spaces.”

Upcoming Events

  • Design Smarter: Leveraging GIS, BIM, and Open Data for Better Site Selection & Collaboration

    Live Webinar

    Register for Free
  • Slate Reimagined: The Surprising Advantages of Slate Rainscreen Cladding

    Webinar

    Register Now
  • The State of Residential Design Today: Innovations and Insights from RADA-Winning Architects

    Webinar

    Register for Free
All Events