Strata House

Project Details

Project Name
Strata House
Location
Bel-AirCA
Project Types
Single Family
Project Status
On the Boards/In Progress
Year Completed
2019
Size
10,493 ft²

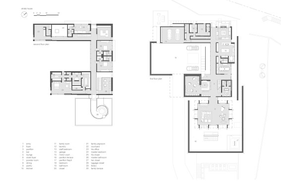
Project Description

This project is a dramatic expansion of an existing 1968 residence by notable Canadian architect, Jean Parkin. The new, three-level house was designed to create a respectful, contrasting backdrop to the original architecture, while doubling the existing program. Situated on a Bel-Air hilltop with expansive, 270-degree views of the city, the new project preserves the strongest elements of the original home; its pavilion-like living room, re-clad in white plaster, serves as the focal point of the whole composition. Creating a contrasting backdrop, a cantilevered second story addition at the top of the site is clad in charred wood using the Japanese shou-sugi-ban technique. Extending from the living pavilion, a rough-hewn stone plinth descends along the slope, allowing the entertaining spaces within to open directly into the outdoors. A generous seating area centered on a fire pit, cabana, and swimming pool rendered as a cube of continually overflowing water complete the scene.

Upcoming Events

  • Slate Reimagined: The Surprising Advantages of Slate Rainscreen Cladding

    Webinar

    Register Now
  • The State of Residential Design Today: Innovations and Insights from RADA-Winning Architects

    Webinar

    Register for Free
  • Specifying Smarter with Copper-Clad Aluminum (CCA) Metal-Clad Cable

    Webinar

    Register for Free
All Events