Strängnäs

Project Details

Project Name
Strängnäs
Architect
NOMO studio
Project Types
Multifamily
Shared By
NOMO studio
Project Status
Concept Proposal
Year Completed
2017
Style
Modern
Team

Project Description

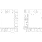
NOMO Studio´s proposal for a residential building in the city of Strängnäs, Sweden takes its starting point from the character of the city´s architecture and its historical symbols. The new building carries the idea of future development without being perceived as misplaced. The design incorporates the arch, which is present in many dominant symbols of the city, such as the Strängnäs Cathedral. The new building is conceptually strong and marks its location without overpowering the surroundings. Its volume is lowered towards the lake to maximize the views over the water, while its higher corresponding corner serves as a clear entrance to the centre. The building consists of small, efficient apartments, all of which have access to a balcony and face the private courtyard. The roof is designed as a communal space with large green areas.

Upcoming Events

  • Design Smarter: Leveraging GIS, BIM, and Open Data for Better Site Selection & Collaboration

    Live Webinar

    Register for Free
  • Slate Reimagined: The Surprising Advantages of Slate Rainscreen Cladding

    Webinar

    Register Now
  • The State of Residential Design Today: Innovations and Insights from RADA-Winning Architects

    Webinar

    Register for Free
All Events