Stoneridge Residence

Project Details

Project Name
Stoneridge Residence
Location
Los Angeles
Project Types
Single Family
Shared By
Assembledge
Project Status
Built
Year Completed
2010
Style
Modern
Size
11,781 ft²

Project Description

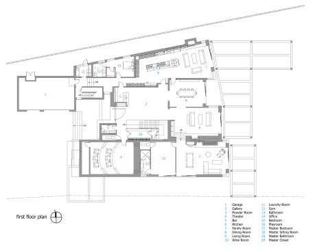
Located along the scenic Mulholland Drive in the hills of Bel Air, the Stoneridge Residence is a remodel of a one-story estate.

Sitting on a uniquely perched site overlooking the San Fernando Valley, the renovation reconnects the residence with its site through large restructured openings and a comprehensive landscaping effort. Along with its expansive lawn and native vegetation, the back yard focal piece is an Olympic-sized infinity-edge pool and Barragan inspired poured-in-place cantilevered concrete water fountain.

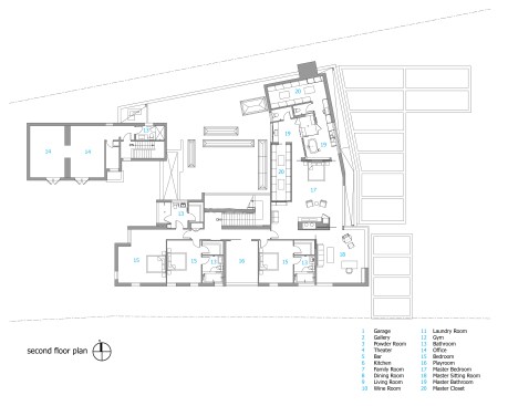
A second-floor addition, looking out on to the back yard and San Fernando Valley unifies the building made of a large mass of brick-faced forms. One of the design goals was to retain and celebrate the original exterior and compliment it with large expanses of glass and dark steel support elements, carefully integrated with the existing brick clad volumes of the home to achieve a dynamic and unified composition.
The interior spaces are affiliated with a focus on elemental wood and stone materials. The ground floor includes a large working kitchen, a family room, and appointed home theater.
A custom designed rough-sawn lumber staircase with a rippling and custom-molded wall that gives the illusion of a fabric curtain blowing in the wind leads to the upper floor reserved for guest bedrooms and an open-flowing 2100-square-feet master bedroom suite.

Upcoming Events

  • Slate Reimagined: The Surprising Advantages of Slate Rainscreen Cladding

    Webinar

    Register Now
  • The State of Residential Design Today: Innovations and Insights from RADA-Winning Architects

    Webinar

    Register for Free
  • Specifying Smarter with Copper-Clad Aluminum (CCA) Metal-Clad Cable

    Webinar

    Register for Free
All Events