STELLA MIXED-USE

Project Details

Project Name
STELLA MIXED-USE
Location
MARINA DEL REYCA
Architect
DesignARC LA
Project Types
Multifamily
Shared By
dmadsen
Project Status
Built
Size
540,000 ft²

Project Description

Drawing on the creative traditions of Venice Beach, while addressing the constraints of a Gray-field, urban infill site, the Stella Mixed-Used project is an expression of the future of multi-family housing: a transit-oriented, LEED ® Silver, mixed-use development. As influenced by the Southern California lifestyle, Stella provides for its residents such amenities as a state of the art gym, lounges, demonstration kitchens, yoga and spa rooms, a dog run, surfboard storage, and a bicycle kitchen.

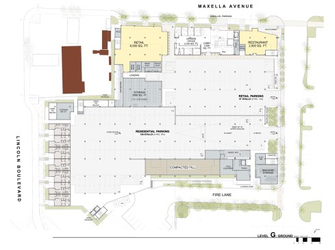
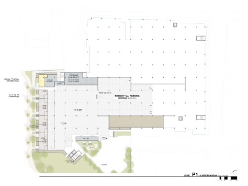
Situated at the convergence of Maxella Avenue, Lincoln Boulevard and the Marina Freeway, and surrounded by essential services and entertainment opportunities, Stella encourages an urban lifestyle for 244 households, including 24 very-low-income families. The building is comprised of two nested L-shaped structures, oriented for maximum access to light and views, set atop a concrete podium housing 9,000 square feet of ground floor retail space and 578 parking stalls.

Creating an urban edge, and responding to the requirements of the Lincoln Community Design Overlay, retail spaces and a pedestrian friendly streetscape front Maxella Avenue; while Live-work townhomes and a generously landscaped setback create an otherwise rare walk-able stretch along busy Lincoln Boulevard.

Responding to the hard urban surroundings of the building, the podium deck is conceived as an elevated ground plane promoting social interaction, and chance encounters for the resident community. Extensive planters throughout the project create intimate alcoves for private gatherings, and serve a dual purpose as an integral part of the storm-water filtration system, meeting the requirements for Low Impact Design. Additional site issues, including methane abatement, groundwater contamination and a high water table, were addressed and mitigated by the design team.

Upon the building’s completion, one could see the stimulus that innovative design and pride of residency can bring to a neighborhood. The adjacent shopping center has expanded and accelerated their renovation plans, and the adjacent hotel is undergoing a boutique rebranding. As a pedestrian-friendly, transit-oriented, mixed-use development with modern amenities, Stella embodies a new paradigm for modern California living, at the edge of the Pacific.

Upcoming Events

  • Design Smarter: Leveraging GIS, BIM, and Open Data for Better Site Selection & Collaboration

    Live Webinar

    Register for Free
  • Slate Reimagined: The Surprising Advantages of Slate Rainscreen Cladding

    Webinar

    Register Now
  • The State of Residential Design Today: Innovations and Insights from RADA-Winning Architects

    Webinar

    Register for Free
All Events