Stealth House

Project Details

Project Name
Stealth House
Project Types
Single Family

Project Description

This project was selected as an Honor winner in the 2024 Residential Architect Design Awards, New Approaches to Housing and Specialty Homes category.

“It's a very specific response to a very specific site, and it's very successful in addressing it right. The image of that courtyard space is quite beautiful.” —Juror Rene Gonzalez

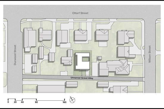
Rethinking the ADU in this era of rapid densification, the architects recognized and addressed the lack of views characteristic of typical ADUs due to proximity to existing houses and changes in zoning regulations. This project in Austin, Texas, solves the issue by eliminating all openings on the perimeter of the unit, save for the entry and garage door, and redirecting focus to two courtyards.

All the main interior spaces—two bathrooms, two bedrooms, the kitchen, and living room—feature sections of floor-to-ceiling glass facing one or both courtyards, flooding the interiors with natural light and offering views of plantings instead of adjacent houses and the gravel alleyway this unit is located on. An olive tree in the larger of the two courtyards will, after some further growth, act as a screen and create a dappled light effect in the living room. Bamboo trees are planted in the long and narrow courtyard, which is screened at the top to serve as a secure aviary for the owner’s cockatiels.

Corrugated Cor-Ten steel clads the perimeter wall to provide a nondescript visual backdrop to properties surrounding the house. Only a massive full-height panel clad in tile catches the eye and marks the entrance. Built at the allowable ADU size for this zone, the Stealth House is a model for urban ADUs as well as houses in inhospitable areas such as lots adjacent to highways and industrial zones.

PROJECT CREDITS:
Project: Stealth House
Location: Austin, TX
Architect: Specht Novak; Scott Specht, AIA; Jakeb Novak, AIA; Travis Power, AIA
Construction End Date: October 15, 2024
Size in Square Feet: 1,100
Cost: $576,000

Interior Designer: Scott Specht and Shiraz Jagtap
Structural Engineer: Steinman Luevano Structures LLP, Richard Luevano, PE
Civil Engineer: Servant Engineering, Mauricio Quintero-Rangel
General Contractor: Smock Build, Austin Smock
Lighting Designer: Specht Novak
Geotechnical Engineer: SEC Solutions, Marcos Dequeiroga PE

MATERIALS AND SOURCES:
Appliances: Bosch; LG
Bathroom Fixtures: Kohler
Cabinets: Stroehman Millwork, Dale Stroehman
Concrete: By General Contractor
Countertops: Cambria
Energy source, including back-up source: (e.g., electric, gas, propane) Solar, Freedom Solar
Exterior Wall Systems: Huber Zip System sheathing; Weathering steel cladding by Western States Metal Roofing
Fabrics and Finishes: Regal Drapes
Flooring: Legno Bastone installed by European Floors of Austin
Furniture: Crate and Barrel; Design Within Reach; Custom furniture by Contractor
Glass: Marble Falls Glass and Mirror
Gypsum: USG
HVAC: Mitsubishi
Insulation: Americana Builders
Kitchen fixtures: Kohler
Lighting Control Systems: Elegrp
Lighting: Visual Comfort
Metal: Weathering steel cladding by Western States Metal Roofing; other steel elements by Manchaca Metal
Paints and Finishes: Sherwin Williams
Photovoltaics or other Renewables: Solar, Freedom Solar
Plumbing and Water System: Rinnai water heater; Plumbing installed by Christianson Plumbing
Site and Landscape Products: Austin Wholesale Landscape Supply (gravel)
Wallcoverings: Arte
Windows and Doors: Marble Falls Glass and Mirror, Fleetwood

Photo Credit: Leonid Furmansky

No taxonomies for this post.

Upcoming Events

  • Design Smarter: Leveraging GIS, BIM, and Open Data for Better Site Selection & Collaboration

    Live Webinar

    Register for Free
  • Slate Reimagined: The Surprising Advantages of Slate Rainscreen Cladding

    Webinar

    Register Now
  • The State of Residential Design Today: Innovations and Insights from RADA-Winning Architects

    Webinar

    Register for Free
All Events