Stealth Building

Project Details

Project Name
Stealth Building
Location
New York CityNY
Project Types
Multifamily
Shared By
Sara Johnson
Project Status
Built
Year Completed
2016

Project Description

Text by Gideon Fink Shapiro

A sharply folding roof plane lies behind the cornice line of an 1857 building in New York City’s Tribeca South Historic District, invisible from the street. This secret aerie caps the renovation and expansion of an apartment building that was originally a five-story commercial loft, and that boasts one of the city’s oldest cast-iron façades. Dan Wood, FAIA, and Amale Andraos, partners in New York–based WORK Architecture Company (WORKac), restored the façade and replaced everything behind it except joists and party walls.

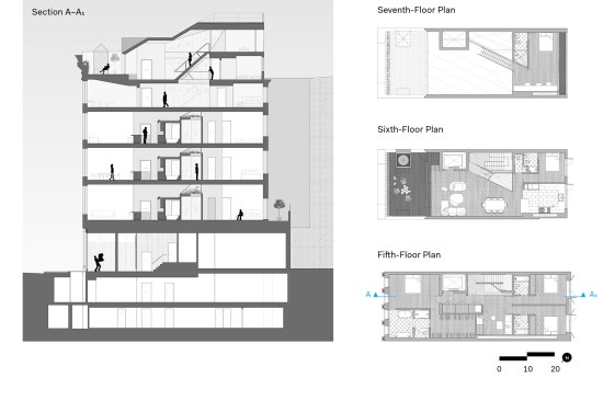
The four-condominium building contains three 1,650-square-foot floor-through apartments, plus a 1,750-square-foot addition that transformed the uppermost unit into a three-level, 3,400-square-foot penthouse. The simplex units below contain WORKac-designed cores that package kitchen, storage, and bathroom spaces in a freestanding volume with additional living space above—a testament to the glory of 13-foot ceilings.

To develop the shape of the addition and conceal it from the street, the duo used a projection model to calculate what Andraos calls “a cone of vision” from a nearby street corner, the furthest point on the ground from which the building can be seen. The oblique sight line determined the roof’s 15-degree slope, as well as the diagonal slash of the ceiling and penthouse staircase relative to the street. The three peaks of the irregular sawtooth roof are abstractions of the pediment, the neighboring building’s pediment, and the former bulkhead, which now contains a hot tub.

The building’s fifth floor, and lowest level of the penthouse, contains three bedrooms and a family room. Connected by a transparent glass-enclosed stairway that qualifies as an emergency stair, the added sixth floor, featuring an open-plan living area and kitchen with a north-facing terrace, serves as a dramatic entrance. The seventh-floor loft, reached via a steel stair, opens to a south balcony.

On the façade, 25 new Corinthian column capitals adorned with foliage motifs stand in for long-lost originals. Generated with Michael Hansmeyer, a Zurich-based architect and programmer, the new capitals were cast not in iron, but in malleable glass-fiber-reinforced concrete based on a CNC-cut foam model—exemplifying the sophisticated layering of preservation and invention throughout the project.


Project Credits
Project: Stealth Building, New York
Client/Construction Manager: Knightsbridge Properties
Architect/Interior Designer/Landscape Architect: WORK Architecture Company, New York . Dan Wood, FAIA, Amale Andraos (principals); Sam Dufaux (associate principal); Karl Landsteiner (construction administration project architect); Chris Oliver (design project architect); Maggie Tsang, Timo Otto, Patrick Daurio
Mechanical/Electrical Engineer: Plus Group Consulting Engineering
Structural Engineer: Robert Silman Associates
Lighting Designer: Tillotson Design Associates
Restoration Architect: CTS Group
Artist, Column Capitals: Michael Hansmeyer
Code Consultant: CCBS Consulting
Size: 14,000 square feet (building, including addition); 3,400 square feet (penthouse unit)
Cost: Withheld

Upcoming Events

  • Build-to-Rent Conference

    JW Marriott Phoenix Desert Ridge

    Register Now
  • Reimagining Sense of Place: Materiality, Spatial Form, and Connections to Nature

    Webinar

    Register for Free
  • Homes that Last: How Architects Are Designing a Resilient Future

    Webinar

    Register Now
All Events