Stanford University’s Central Energy Facility

Project Details

Project Name
Stanford University’s Central Energy Facility
Architect
ZGF Architects
Project Types
Infrastructure
Shared By
katie_gerfen
Project Status
Built
Size
142,100 ft²
Team
Partner : Joe Collins
Project/Construction Manager : Bijendra Sewak

Project Description

2017 AIA Institute Honor Award Winner in Architecture

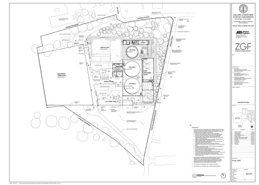
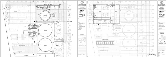
Stanford University’s campus is forested, gorgeous, and very, very big. Eight-thousand acres in all, the great swath of Northern California landscape known as “the farm” is home to dozens of buildings, all of which have to be powered, plumbed, heated, and cooled. Such quotidian technicalities could easily be hidden away in a modest shed, but Stanford’s new Central Energy Facility puts them front and center.

Designed by Portland, Ore.’s ZGF Architects, the facility plays up its innovative, ultra-efficient technology with vivid colors and dramatic material contrasts: On the campus-facing side, a glass volume housing administrative offices abuts a concrete block with generators, chillers, and cooling towers—the whole ensemble topped by a series of photovoltaic sunshades held aloft on metal piers. A mechanistic showcase recalling the grand old radicalism of the Centre Pompidou, the building’s pipes are painted a brilliant blue, and its thermal tanks a blaring red. In a softer, more contemporary touch, the shade structures shelter landscaped outdoor spaces with indigenous plantings.

But what the project represents is even more striking than the building itself: The facility is just one part of the Stanford Energy Systems Innovations, a massive infrastructural initiative expected to improve campus energy performance by 75 percent. And to prove how central the initiative is, Stanford has made the building part of its campus tours—another lure for prospective students alongside the original Mission-style architecture and mascot-inspiring evergreens.

Project Credits
Project: Stanford University Central Energy Facility, Stanford, Calif.
Client: Stanford University
Architect/Interior Designer: ZGF Architects, Portland, Ore. . Joseph Collins, FAIA (partner-in-charge); Toby Hasselgren, AIA (principal designer); Renee Kajimoto, AIA, Curt Williams (project architects); Solvei Neiger, AIA (programmer); Chris Flint Chatto, Assoc. AIA (sustainable designer); Glen Justice, AIA, Michael McGale, Kelvin Ono, AIA, Halliday Meisburger, AIA, Jonah Hawk (design team)
Structural Engineer: Rutherford + Chekene
Mechanical Engineer: Affiliated Engineers
Civil Engineer: BKF Engineers
Construction Manager/GeneralContractor: Whiting-Turner Contracting Co.
Landscape Architect: Tom Leader Studio
Size: 125,600 square feet
Cost: $485 million

To see the rest of ARCHITECT’s coverage of the 2017 AIA Institute Honor Awards, click here.

From the AIA:
At the heart of Stanford University’s transformational, campus-wide energy system is a new, technologically advanced central energy facility. The system replaces a 100% fossil-fuel-based cogeneration plant with primarily electrical power—65% of which comes from renewable sources—and a first-of-its-kind heat recovery system, significantly reducing greenhouse gas emissions, and fossil fuel and water use. The facility comprises a net-positive-energy administrative building, a heat recovery chiller plant, a cooling and heating plant, a service yard, and a new campus-wide main electrical substation. Designed to sensitively integrate into the surrounding campus, the architectural expression is one of lightness, transparency and sustainability to express the facility’s purpose.

2017 AIA COTE Top Ten Jury Comments:
This project fulfills a carbon-neutral strategy for Stanford and houses a central plant and facilities building. The facility demonstrates a long-range climate and energy plan in action. It transforms what would be a typical unappreciated energy plant into a classroom and a moment of architectural joy. A naturally ventilated, daylit work environment is provided for facilities staff who would normally be in a windowless basement. It sets a high bar for a university to provide national environmental leadership and design excellence.

BY THE NUMBERS:
Predicted lighting power density (watts per square-foot): 0.44 watts/sq.ft.
Actual Consumed Energy Use Intensity (Site EUI): 38.1
Actual percent reduction from National Average EUI for Building Type: 197.9%
Predicted annual consumption of potable water for all uses, including process water: 1,615,400
Percentage of rainwater that can be managed onsite: 90%
Percentage (by weight) of construction waste diverted from landfill: 75%

Upcoming Events

  • Build-to-Rent Conference

    JW Marriott Phoenix Desert Ridge

    Register Now
  • Reimagining Sense of Place: Materiality, Spatial Form, and Connections to Nature

    Webinar

    Register for Free
  • Homes that Last: How Architects Are Designing a Resilient Future

    Webinar

    Register Now
All Events