Staab Residence

Project Details

Project Name
Staab Residence
Project Types
Single Family
Project Scope
New Construction
Project Status
Built
Size
3,384 ft²

Project Description

2015 Residential Architect Design Awards
Custom/Over 3,000 Square Feet
Award

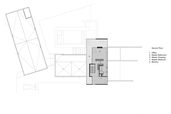
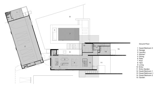
In this Scottsdale, Ariz., suburban neighborhood of single-acre lots, the 3,384-square-foot Staab Residence was designed by local firm Chen + Suchart Studio to shield itself from its undistinguished neighbors and maximize the stunning views of the desert. Sandblasted masonry walls enclose a first-floor living space whose floor-to-ceiling sliding glass panels open onto a courtyard and pool. Two private guest rooms enjoy carefully framed, yet distinct, relationships to the landscape. The second-floor master suite floats above the masonry walls and is minimally sheathed in stainless steel and glass that dramatically reflects the sky and nearby McDowell Mountains. The garage and a third guest room occupy a Cor-Ten-clad structure that provides a strong counterpoint to the principal volumes of the house. —Edward Keegan, AIA

From the Jury

“The textures are amazing, and I love the composition, with the reflectivity of the materials.” —Seth Grizzle

Project Credits

Architect: Chen + Suchart Studio, Scottsdale, Ariz.—Thamarit Suchart, Patricia Chen Suchart
Project Size: 3,384 square feet
Construction Cost: $275 per square foot

Click here to see all of the winners from the 2015 Residential Architect Design Awards.

Upcoming Events

  • Design Smarter: Leveraging GIS, BIM, and Open Data for Better Site Selection & Collaboration

    Live Webinar

    Register for Free
  • Slate Reimagined: The Surprising Advantages of Slate Rainscreen Cladding

    Webinar

    Register Now
  • The State of Residential Design Today: Innovations and Insights from RADA-Winning Architects

    Webinar

    Register for Free
All Events