St. Kilda Surf and Turf

Project Details

Project Name
St. Kilda Surf and Turf
Location
111 East Grand Avenue, Suite 105Des MoinesIA50309
Project Types
Hospitality
Project Scope
New Construction
Shared By
Jill
Project Status
Built
Year Completed
2019
Style
Modern
Size
3,184 ft²

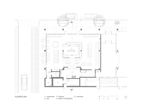
Project Description

The polished-casual dining establishment anchors the northwest corner of a dowel laminated timber (DLT) office building in a vibrant urban neighborhood. The restaurant’s north and west walls are fully glazed, expanding the dining experience out to the penumbra of the overhanging office floors above.

Structural glue-laminated spruce columns and beams remain exposed, as does the electrical conduit tamed to fit between structural wood panels. Edison bulbs suspended from multi-colored pendants round out the holistic, soft-industrial aesthetic.

Variously configured dining areas with custom-fabricated steel and white oak furniture gravitate to a full-service bar wrapped in black tile, topped with white quartz, and sheltered under a taut volume of slatted wood and diaphanous steel. Adjustable illumination sets the assembly aglow, allowing the restaurant to strike different moods throughout the evening.

Locating preparation activity front and center showcases artisanal performance with a comfortable informality. A generous pass-through into the blackened steel-clad kitchen strengthens the thrust-stage effect, visually connecting patrons with their food’s preparation.

Our restauranteur clients built their reputation on the exceptional quality of their healthy, modern cuisine. This design lets that quality radiate from the kitchen, through the bar, and into the cityscape beyond.

Upcoming Events

  • Design Smarter: Leveraging GIS, BIM, and Open Data for Better Site Selection & Collaboration

    Live Webinar

    Register for Free
  • Slate Reimagined: The Surprising Advantages of Slate Rainscreen Cladding

    Webinar

    Register Now
  • The State of Residential Design Today: Innovations and Insights from RADA-Winning Architects

    Webinar

    Register for Free
All Events