ST. GEORGE BALLPARK AND WATERFRONT PARK

Project Details

Project Name
ST. GEORGE BALLPARK AND WATERFRONT PARK
Architect
HM White
Shared By
HM White
Project Status
Built
Year Completed
2001

Project Description

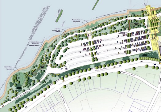
As waterfront design consultants, HM White developed a comprehen¬sive open space design for a one-mile long stretch of Staten Island’s St. George waterfront in conjunction with the new Staten Island Yankee’s ballpark. As part of a bi-level open space system the ballpark was used as a means to create multiple linkages that connect Richmond Terrace to a shoreline esplanade, stadium entry plazas, municipal and ballpark park¬ing, future light rail station, marine woodland walkways and bike paths. The master waterfront development plan reconciled the ballpark and site circulation requirements with shore stabilization- all coordinated within a regenerated marine upland landscape context.

Provisions for future light rail were accommodated with municipal park¬ing, playgrounds, a fitness course, a mixture of ballpark support ameni¬ties and a richly detailed pubic environment as the basis for improving the district’s economic development potential. The landscape design ap¬proach required the holistic understanding of the site’s ecology and con¬taminated soil conditions. HM White employed bio-engineering to manage stormwater run-off as well as soil remediation strategies that form the basis of a landscape infrastructure.

Upcoming Events

  • Build-to-Rent Conference

    JW Marriott Phoenix Desert Ridge

    Register Now
  • Reimagining Sense of Place: Materiality, Spatial Form, and Connections to Nature

    Webinar

    Register for Free
  • Homes that Last: How Architects Are Designing a Resilient Future

    Webinar

    Register Now
All Events