Spruce Ridge Cabin

Project Details

Project Name
Spruce Ridge Cabin
Project Types
Single Family
Project Status
Built

Project Description

This project was selected as a Citation winner in the 2024 Residential Architect Design Awards, Custom Home / 3,000 Square Feet or Less category.

“I was intrigued because it's so integrated within the trees and obviously would have minimal disturbance.” –Juror Ashley Heeren

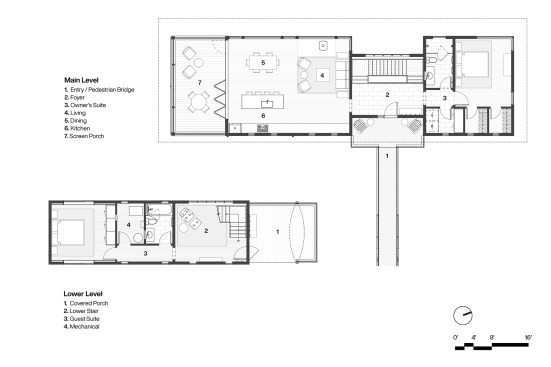
Designed for an avid outdoorsman and environmentalist, this retreat sits on a piece of land high up in the North Carolina portion of the Appalachian Mountains. At a 6,000-foot elevation, the region boasts a unique microclimate and habitat that supports rare flora and fauna—an ecosystem the client did not want to impact both visually and environmentally. To address this concern, the architects devised a modest composition of two cantilevered forms situated downhill from the parking area amidst the trees and clad the upper volume in vertical cedar siding with a dark pine tar stain. The tone not only emulates the colors of the surrounding red spruce forest but also prevents moisture penetration and repels insects. Meanwhile, the lower volume is finished with a dark tinted plaster to help blend it in with the granite rock outcroppings. The team worked with environmental consultants and an arborist to develop the site and ensure reduced impact on the land during and after construction, with strategies ranging from tree and soil preservation to an integrated stormwater system.

Elements meant to immerse the client and his guests in nature include an elevated footbridge connecting the parking area to the cabin’s entrance, three porches, floor-to-ceiling windows, and an 18-foot-wide folding door. Meanwhile, birch-plywood finishes imbue the spaces with welcoming warmth and simplicity.

PROJECT CREDITS:
Project: Spruce Ridge Cabin
Location: Sylva, NC
Client/Owner:
Architect: Altura Architects; Duncan McPherson, AIA, LEED AP (Principal Architect); Tyler Housholder, LEED AP (Project Manager)
Construction End Date: May 2022
Size in Square Feet: 1,735 (conditioned) 788 (unconditioned)
Cost: $940,000

Mechanical Engineer: Vandemusser Design PLLC
Structural Engineer: Innovative Structural Engineering
General Contractor: Carolina Builder Services
Environmental Consultant: Equinox Environmental
Bridge Consultant: Bridge Brothers

MATERIALS AND SOURCES:
Appliances: Roundstack by La Castellamonte Custom Wood Stove; Liebherr Refrigerator; Samsung Induction Range; Bosch Dishwasher
Bathroom Fixtures: Kohler and Hansgrohe
Cabinets: Custom Birch Cabinets
Ceilings: Birch Plywood Panels
Countertops: Solid Surface
Energy source, including back-up source: Electric with propane back-up generator
Exterior Wall Systems: Western Red Cedar with custom formulated Pine Tar Stain
Flooring: Thermory Decking and RIVA engineered white oak floors
Furniture: Mobilia
HVAC: High efficiency dual fuel heat pump with ERV and whole-house dehumidifier
Insulation: Spray foam
Kitchen fixtures: Hansgrohe
Lighting Control Systems: Lutron
Lighting: CSL recessed lighting
Paints and Finishes: Plaster by Orling Finishes
Photovoltaics or other Renewables: Prewired for future solar
Plumbing and Water System: Tankless water heater
Roofing: Standing Seam Metal Roof
Site and Landscape Products: AquaBlox Water Storage Modules
Structural System: Structural Steel, Concrete, and Wood Framing
Wallcoverings: Birch Plywood Panels
Windows and Doors: WeatherShield Windows, Large Bi-fold and Patio Doors; Velux Skylight; Trustile interior doors; Custom White Oak front door by Loud Woodwork

Photo Credit: Keith Isaacs

No taxonomies for this post.

Upcoming Events

  • Reimagining Sense of Place: Materiality, Spatial Form, and Connections to Nature

    Webinar

    Register for Free
  • Homes that Last: How Architects Are Designing a Resilient Future

    Webinar

    Register Now
All Events