Space Pod

Project Details

Project Name
Space Pod
Location
BoulderCO
Project Types
Project Scope
New Construction
Shared By
Ashleigh Popera
Project Status
On the Boards/In Progress
Year Completed
2016
Size
800 ft²
Team

Project Description

FROM THE ARCHITECTS:

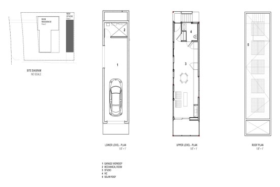
Located in a walkable, transitional neighborhood near an urban downtown corridor, Space Pod – a nickname given to this structure by the neighbors – acts as a multipurpose space for a young landscape architect. This project was designed to be built in phases and Space Pod is Part I. Part II consists of a Single-Family Residence. The location of each volume on the site was driven by the desire to create a private, sun-filled backyard space, free from large imposing structures.

Embracing a shotgun typology shape, the Space Pod’s lower level holds a garage and a bike workshop while the upper level is a flexible place that accommodates working, playing and relaxing. This second story offers opportunities to see the Flatirons.

Inspired by monochromatic black paintings of Ad Reinhardt and Frank Stella, a minimalistic material palette of concrete, metal and glass was selected. This composition features subtle textures, perforations, and transparencies, more or less visible in different light.

Upcoming Events

  • Design Smarter: Leveraging GIS, BIM, and Open Data for Better Site Selection & Collaboration

    Live Webinar

    Register for Free
  • Slate Reimagined: The Surprising Advantages of Slate Rainscreen Cladding

    Webinar

    Register Now
  • The State of Residential Design Today: Innovations and Insights from RADA-Winning Architects

    Webinar

    Register for Free
All Events