Southampton, N.Y., Residence

Project Details

Project Name
Southampton, N.Y., Residence
Project Types
Custom
Project Scope
New Construction
Shared By
Chinnu
Project Status
Built
Size
750 ft²
Room or Space
Bath

Project Description

2006 CHDA
Custom Bath / Merit Award

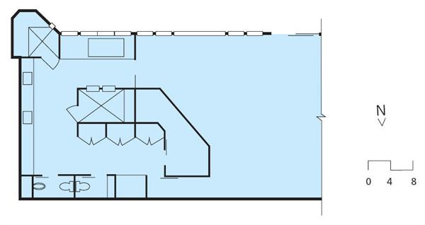
This master bath, in an eclectic 1970s Modernist house by noted architect Norman Jaffe, had plenty of elbow room, but its contents were in need of a major tune-up. In spite of the house’s beachfront site, architect Page Goolrick says, “It had not really taken advantage of the views very well.” The tub was too low and too far from the window wall. The corner shower, virtually surrounded by exterior walls, had only “a little sliver of a window. It wasn’t very inviting.” Without altering the room’s footprint, Goolrick developed a new scheme that freshened things up nicely.

An elevated tub now hugs the outside wall. A large two-place shower stands in the center of the room, sharing the tub’s ocean view through a pair of high windows of its own. Goolrick converted the original shower to a steam room, relocated and reduced two oversize toilet compartments, and replaced two separate sink stations with a single 20-foot-long concrete-topped vanity. Faced in oak to match the original ceiling and wall paneling, the cabinet floats against a wall that is mirrored both above and below it. Other materials—watery blue ceramic tiles at the floor, blue glass tiles in the shower—reflect the house’s proximity to the sea. “Almost anywhere you are in here you see the ocean,” Goolrick says, “so it’s really pulled into the room.” Our judges approved. “I could picture myself going into this bath in the morning,” said one. “It gives you a good feeling.”

Upcoming Events

  • Design Smarter: Leveraging GIS, BIM, and Open Data for Better Site Selection & Collaboration

    Live Webinar

    Register for Free
  • Slate Reimagined: The Surprising Advantages of Slate Rainscreen Cladding

    Webinar

    Register Now
  • The State of Residential Design Today: Innovations and Insights from RADA-Winning Architects

    Webinar

    Register for Free
All Events