Sound Beach House Addition

Project Details

Project Name
Sound Beach House Addition
Location
Sound BeachNY
Architect
GF55 Partners
Project Types
Single Family
Project Status
Built
Year Completed
2016
Size
2,000 ft²

Project Description

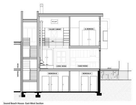
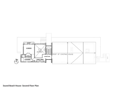
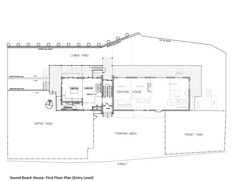
Located on the bluff on the north shore of Long Island Sound, the Sound Beach House extension & renovation was designed as a modern addition to the original 1974 ranch style house. A major issue was bluff erosion as high waves, wind, groundwater and surface runoff have caused significant loss of land to the sea. Erosion control measures were necessary to allow for the proposed addition and to prevent significant property damage and potential loss of both existing and new structures. Only an hour and a half from Manhattan, in the quiet neighborhood of Sound Beach, this property enjoys amazing views of the Long Island sound. The program was to create a larger gathering place for friends and family to enjoy. The challenge was to integrate the new modern addition on a small, eroding and very limited piece of vacant land adjacent to the existing house with a limited budget. Being waterfront and located on the bluff came with a commitment not only to protect it from the elements, but also to protect the environment and the surroundings in which it is built on. Construction had to take place in phases to make sure that the bluff is stable enough and that the new and existing structures were protected. Measures such as supporting bulkheads and retaining walls were built to minimize soil settlement. Located on a steeply sloping bluff, the home is placed 80ft – 100ft above sea level and just about 20ft from the edge of bluff. As such, the house is naturally located outside of the flood level. However, the house would need to stand strong against a range of environmental threats including erosion, hurricane strength winds and wind-driven rain. First, a lower bulkhead was built at the toe of the bluff to protect it from erosion caused by the rising sea levels and strong waves. Low and high tide vary between 7ft – 10ft and during nor’easter storms the waves often go over the 8-10ft high bulkheads. Next, an upper bulkhead was built at the top of bluff to support and retain the land. Shortly after, the entire bluff was re-vegetated with American beach grass, bayberry, wild vines, and herbaceous vegetation to help stabilize the soil. The vacant land, mostly silty sand and clay, next to the original house was dug and carved to create a flat surface for the foundations and concrete slab on grade. Two additional retaining walls were built to mitigate between the lower semi-basement level and the street entry level of the house. A major focus was protecting the home from the elements while maximizing light and water views. This was done by using double the wood posts, Glulam laminated beams, hurricane connection tie-downs between roof and framing and durable hardy board and EFIS siding. The north wall of the existing house had to be reinforced and braced as well, in order to sustain strong winds. Both the old and the new sections of the house were covered with new dark grey Hardie Board sidings. The new house addition includes portions of light grey EFIS on the central stairs “connector” element and on the upper level projecting master bathroom. White accents were added for contrast to define building lines. This included windows, doors, fences and other locations with a transition of materials. The entire roof was sloped in the opposite direction of the bluff to direct rain water away from the bluff, to minimize erosion. Rain water is collected through gutters and directed by pipes to a water flo-well, located landward and away from the bluff. The entry foyer of the house addition features “see-through” stairs, giving it a dramatic view of the ocean and the drop of the bluff. The stairs act as a “connector”, separating between the old house and the new addition. There are large windows on the north façade and a glass sliding door opens up to an extended mid-level deck along the north-south stairs axis. Built out of black steel profiles that support open wood treads, the stairs allow great water views through them. The double height living space with Brazilian Cherry floors extend to the exterior using Red Rose PVC surrounding deck. This appears as a single platform floating over the water with unobstructed views of the Long Island Sound. A cable railing system was developed to minimize obstruction and maximize views. The same cable railing system is used on the interior stairs, gallery and master bedroom balcony, giving it a light nautical feel. The living room surrounded by Marvin Integrity windows features a Paxfocus fireplace on a white brick veneer wall and base. Minimum use of A/C is used during the summer as breeze from the sea flows in from the north and warm air flows up and out through upper window openings on the south facade. The south elevation includes a single large window to the yard and two small square windows, providing mostly for air circulation and view of the yard. The upper level Library/Gallery that leads to the Master Bedroom includes a built-in reading bench. From this vantage point, there are views down to the double height living room space and the sea through a large 2nd story window. The master bedroom has a panoramic view of the sea with a large sliding glass door to a walk-out balcony and the 2nd story window. There is also an interior window looking down into the double height living room space.

Upcoming Events

  • Slate Reimagined: The Surprising Advantages of Slate Rainscreen Cladding

    Webinar

    Register Now
  • The State of Residential Design Today: Innovations and Insights from RADA-Winning Architects

    Webinar

    Register for Free
  • Specifying Smarter with Copper-Clad Aluminum (CCA) Metal-Clad Cable

    Webinar

    Register for Free
All Events