Sonoma Land Trust Baylands Center

Project Details

Project Name
Sonoma Land Trust Baylands Center
Architect
Lundberg Design
Project Types
Community
Project Scope
New Construction
Shared By
Carl Servais
Project Status
Built

Project Description

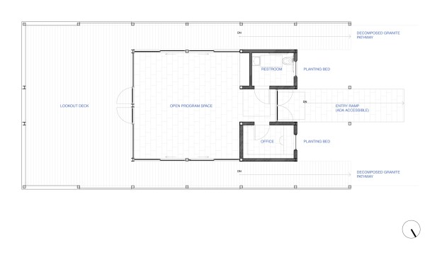
The Sonoma Land Trust (SLT) is a local nonprofit whose goal is to conserve scenic, natural, agricultural and open land for the future of Sonoma County. The SLT Baylands Center was conceived as an open-program space/viewing pavilion for the acres of tidal marshes and wetlands that the organization recently acquired at the southern end of Sonoma County (The Sears Point Restoration Project).

The site is on the high ground off of Highway 37, within an old dairy farm that is still used for ranching, as well as a wildlife refuge. The modest pavilion is built, in part, from reclaimed materials salvaged from some of the collapsed barns found on site. Its simple form was achieved by creating a structure within a structure. The exterior wood latticework defines the gable form, mimicking the solid barn buildings beyond, while allowing transparency and views through the slatted openings. A glazed interior space houses a small office, restroom and open-program area. It can function as a protected space in inclement weather, or completely open up to the outside deck via a series of sliding glass doors. The deck is open to the public 365 days a year, 24 hours a day, as a place to observe the changing landscape as the restoration efforts take place. The Land Trust uses the pavilion for fundraising events, educational tours, board meetings, and sometimes just as a place to watch the rain.

Design services were offered to the non-profit pro bono.

Upcoming Events

  • Design Smarter: Leveraging GIS, BIM, and Open Data for Better Site Selection & Collaboration

    Live Webinar

    Register for Free
  • Slate Reimagined: The Surprising Advantages of Slate Rainscreen Cladding

    Webinar

    Register Now
  • The State of Residential Design Today: Innovations and Insights from RADA-Winning Architects

    Webinar

    Register for Free
All Events