Songpa Micro-Housing

Project Details

Project Name
Songpa Micro-Housing
Project Types
Multifamily
Project Scope
New Construction
Shared By
LeahD
Project Status
Built
Year Completed
2014

Project Description

In an increasingly urbanized world, the density achievable through micro-housing is a trending idea. New York– and Seoul, South Korea–based SSD principals Jinhee Park, AIA, and John Hong, AIA, explore the concept in a 14-unit structure that is an ethereal presence in a densely populated section of Seoul. “We think that it’s an arbitrary relationship that size and quality should be related,” Hong says. “We’re trying to play with that perception.”

The structure of SSD’s Songpa Micro-Housing is defined by a screen made of vertical, quarter-inch-thick stainless steel bars. “We wanted to maximize the floor area ratio and provide as many units as possible,” Park says. The mansard-like inflection in the overall form follows the required setbacks and the diagonal sun exposure line.

The ground level, primarily devoted to plaza space, includes four parking spaces as required by zoning. “None of the residents have cars,” Hong says. “That’s the funny thing about city regulations. They’re based on a metric that’s so general.”

A grade-level entry to an underground café is configured as a “micro-auditorium” where people can sit for performances. The subterranean shop also contains a public gallery with free coffee for residents—a bid to encourage a sense of community.

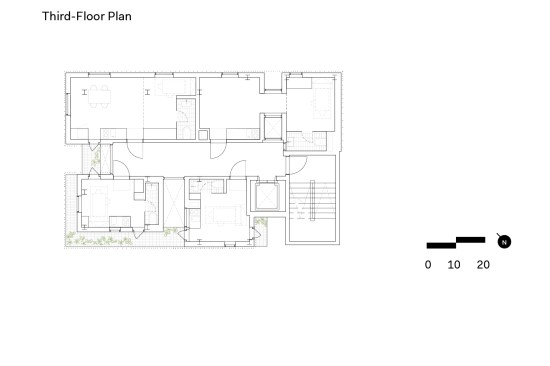
The residential units each comprise a mere 120 square feet—the smallest dimensions allowed by code—and are located on levels two through six. There are two configurations—rectangular and square—and all share common space in the center of the structure. “The perception of the space is expanded beyond your own living area,” Hong says. The shifted arrangement of the units within the overall frame creates varied interstitial spaces, some private, some shared. There are currently nine tenants, as several elected to combine units. The second floor has become a gallery that residents use as a shared living room.

Working with a limited budget, the firm kept the palette to a minimum: cement board exterior walls are wrapped in the stainless steel screens; interiors feature gypsum board walls, polished concrete floors in the common areas, and hardwood floors in the units. “We wanted to express how the building is used,” Hong says.

In exploring complex spatial relationships between extremely small living units, SSD has created a model that begs for further development. “The nuclear family is disappearing and becoming something else,” Hong says. “This housing responds to that and allows change to happen.” Songpa Micro-Housing’s blend of urban form and unit composition suggests other paths forward to develop flexible housing for new times: “We can create a more sustainable community,” Park says.

Project Credits
Project: Songpa Micro-Housing, Seoul, South Korea
Client: Chanill Lee
Architect: SSD, New York and Seoul, South Korea . Jinhee Park, AIA, John Hong, AIA (principals in charge); Seung-hoon Hyun (project manager); Taylor Harper, Allison Austin, Evan Cerilli, Mark Pomarico, Yufeng Zheng, Victor Michel, Virginia Fernandez Alonso (design team)
Architect of Record: Dyne Architects
Structural Engineer: Mirae Stuctural Design Group
Lighting: Newlite
Acoustical: RPG Korea
Fabrication: Mohse; Madein; Slyducks
General Contractor: Kiro Construction
Size: 5,500 square feet
Cost: $1.5 million

This article appeared in ARCHITECT’s June 2015 issue.

The problem of urban density and housing costs is global. As unit types get smaller however, land costs coupled with developer driven profit margins can merely create a provisional housing type with little social value. By mining the discrepancy between maximum floor area ratios and maximum zoning envelopes, Songpa Micro-Housing provides a new typology that extends the limits of the housing unit to also include semi-public circulation, balconies, and the thickness of walls. Like the ambiguous gel around a tapioca pearl, this ‘Tapioca Space’ becomes a soft intersection between public/private and interior/exterior, creating social fabrics between neighbors.

Fourteen ‘unit blocks’ allow residents to either claim a single space, or in the case where a couple or friends desire to do so, recombine the blocks for larger configurations. This flexibility accommodates changing live and work situations allowing residents to occupy the building longer and therefore more sustainably. Further generating the idea of community, exhibition spaces on the ground floor, basement, and second floors are spatially linked to the units as a shared living room. Although the zoning regulations requires the building to be lifted for parking, this open ground plan is also used to pull pedestrians in from the street and down a set of auditorium-like steps, connecting city and building residents to the exhibition and cafe spaces below.

– courtesy SsD

Upcoming Events

  • Build-to-Rent Conference

    JW Marriott Phoenix Desert Ridge

    Register Now
  • Reimagining Sense of Place: Materiality, Spatial Form, and Connections to Nature

    Webinar

    Register for Free
  • Homes that Last: How Architects Are Designing a Resilient Future

    Webinar

    Register Now
All Events